Connect

Find us on...

Dashboard

Login using...

Sandra Baldwin

Realtor - Co-Founder at Launch Real Estate

  • Office (602) 397-4300
Questions?

16004 N Ringtail Trail (unit 236), Fountain Hills, AZ – $749,000

  • $749k Price
  • 1.1 Acres
  • $749k Price
  • 1.1 Acres

16004 N Ringtail Trail (unit 236)

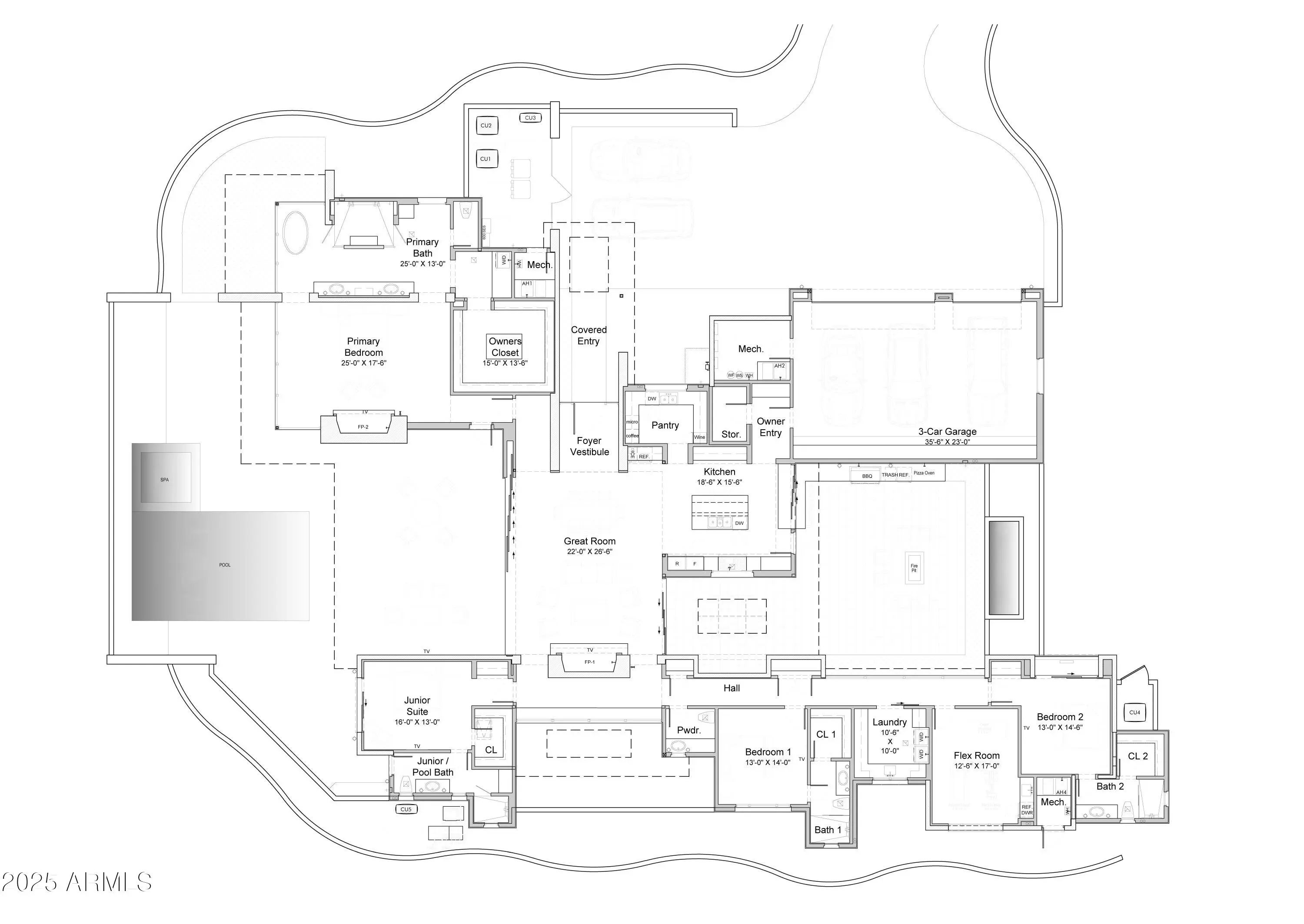
Welcome to an exceptional opportunity in the prestigious, guard-gated Eagles Nest community in Fountain Hills, AZ! This 1.10-acre homesite offers breathtaking panoramic views of the surrounding desert landscape and iconic Four Peaks Mountain. Nestled within a secure, private, and exclusive custom home community, Eagles Nest provides a serene and tranquil setting, while still being conveniently close to local amenities, dining, and outdoor activities. Included with the sale are custom plans for a stunning 4,781 SF contemporary home, designed by renowned PHX Architecture. The plans are thoughtfully crafted to embrace the natural beauty of the land, with open-concept living spaces, floor-to-ceiling windows that frame the spectacular views, and a seamless flow between indoor/outdoor area. Build with Weber Construction, one of the top custom home builders in Arizona, known for their attention to detail and exceptional craftsmanship, or choose your own builder to bring your vision to life. Don't miss the chance to create your dream home on this spacious lot in one of Fountain Hills' most sought-after, guard-gated communities, where luxury, privacy, and nature come together in perfect harmony! See DOCUMENTS TAB for plans and specifications

Essential Information

  • MLS® #6810065
  • Price$749,000
  • Acres1.10
  • TypeLand
  • StatusActive

Community Information

  • SubdivisionEAGLES NEST PARCEL 11
  • CityFountain Hills
  • CountyMaricopa
  • StateAZ
  • Zip Code85268

Address

16004 N Ringtail Trail (unit 236)

Amenities

  • ViewMountain(s)

Exterior

Lot Description

Cul-De-Sac, Gated Community, Guarded Entry

School Information

  • ElementaryFountain Hills Middle School
  • MiddleFountain Hills Middle School
  • HighFountain Hills High School

District

Fountain Hills Unified District

Additional Information

  • ZoningR-43

Listing Details

  • OfficeSilverleaf Realty
Please provide a valid email address.

Price Change History for 16004 N Ringtail Trail (unit 236), Fountain Hills, AZ (MLS® #6810065)

Date Details Change
Price Reduced from $849,000 to $749,000 $100,000 (11.78%)

Silverleaf Realty.

Information Deemed Reliable But Not Guaranteed. All information should be verified by the recipient and none is guaranteed as accurate by ARMLS. ARMLS Logo indicates that a property listed by a real estate brokerage other than Launch Real Estate LLC. Copyright 2025 Arizona Regional Multiple Listing Service, Inc. All rights reserved.

Listing information last updated on December 18th, 2025 at 7:18am MST.