Connect

Find us on...

Dashboard

Login using...

Sandra Baldwin

Realtor - Co-Founder at Launch Real Estate

  • Office (602) 397-4300
Questions?

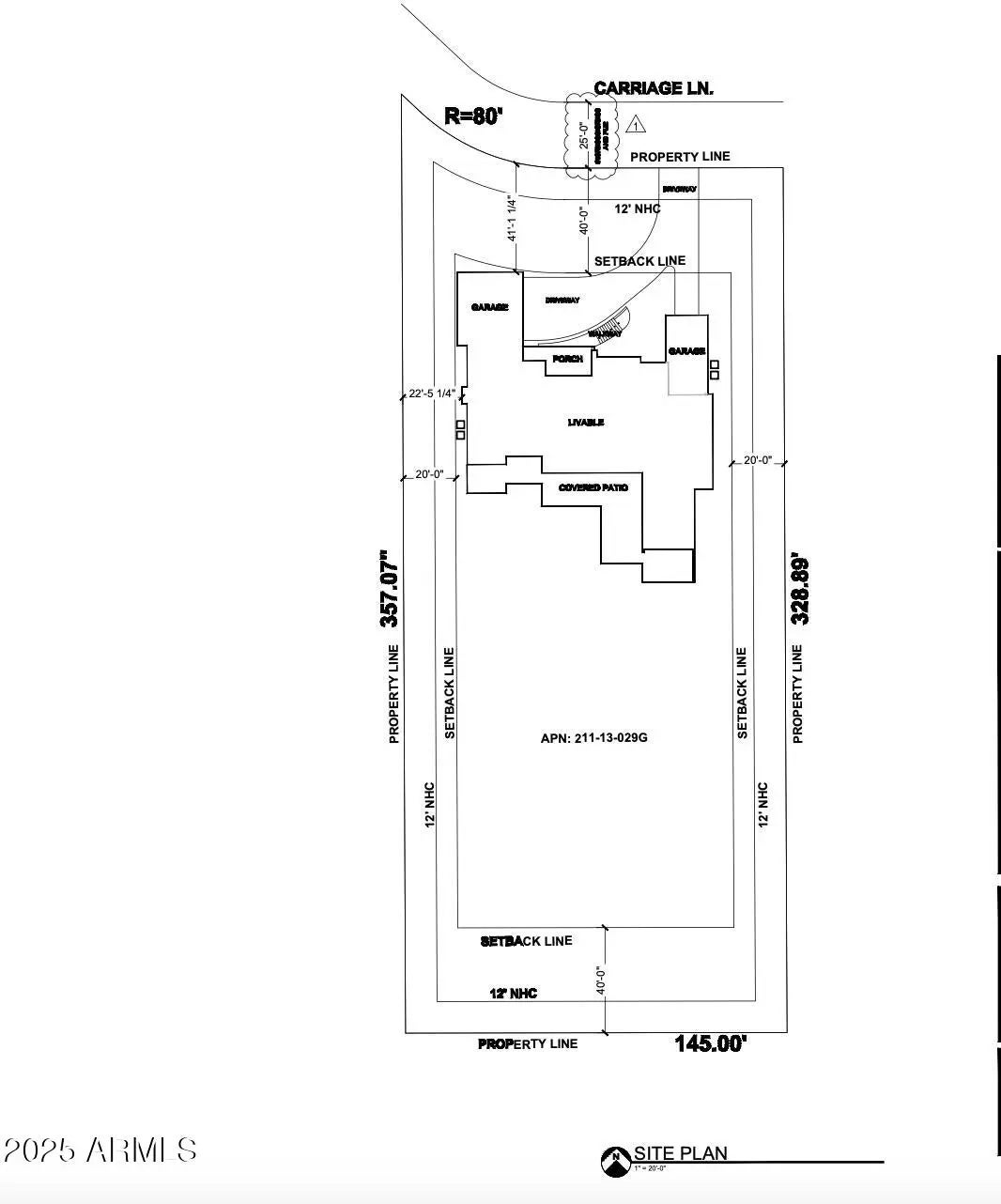
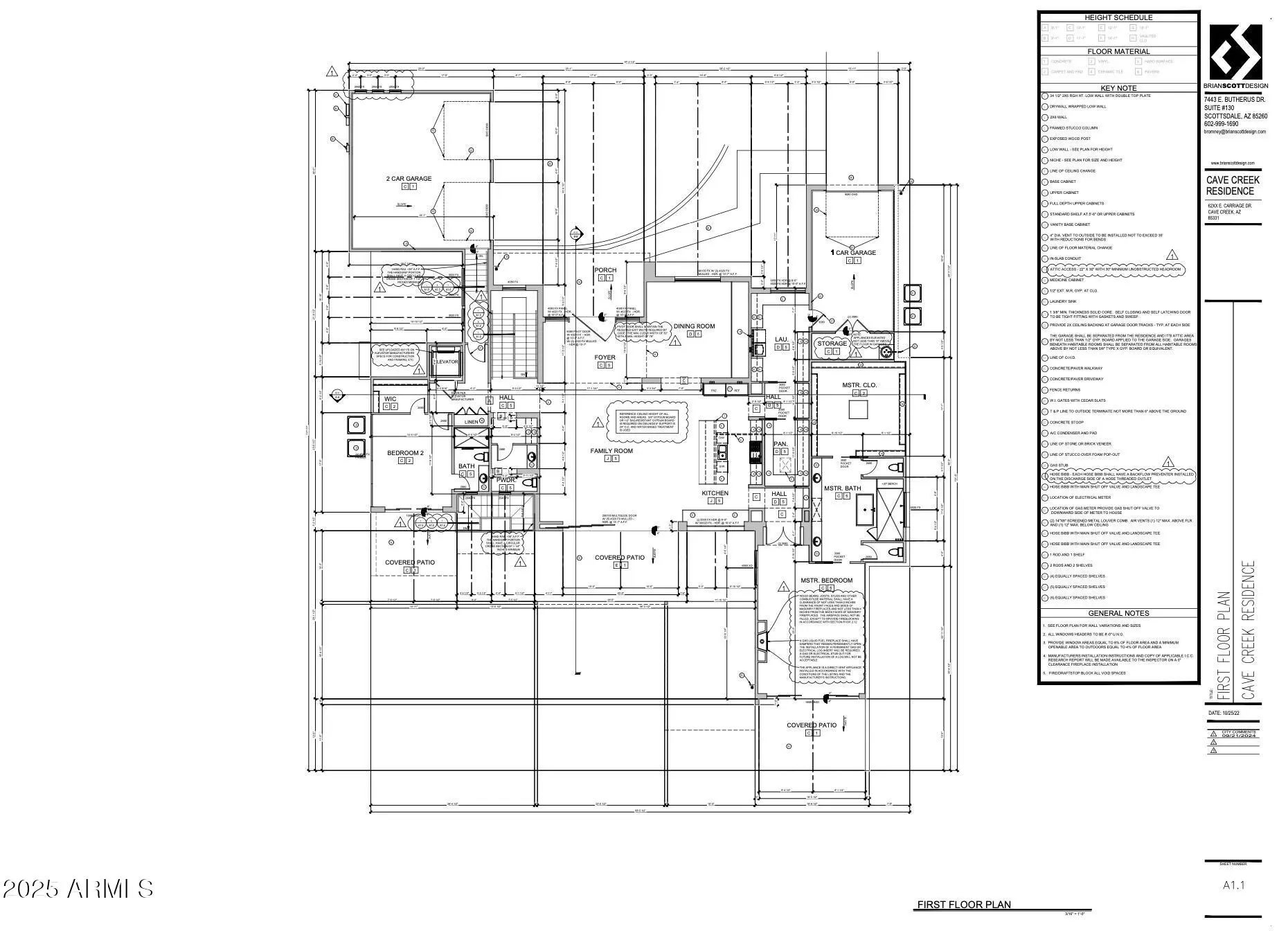
6213 E Carriage Drive (unit 2), Cave Creek, AZ – $575,000

  • $575k Price
  • 1.11 Acres
  • $575k Price
  • 1.11 Acres

6213 E Carriage Drive (unit 2)

APPROVED BUILDING PLANS! Perched atop Black Mountain, this stunning 1.1-acre lot offers breathtaking 180-degree views, from Camelback Mountain to Cardinals Stadium. Positioned for Arizona's iconic sunsets, this rare homesite is truly ready to build—fully approved plans are in place so you can break ground immediately. The proposed luxury home boasts 6,717 sq. ft. of livable space, thoughtfully designed to maximize the incredible views while blending seamlessly with the natural surroundings. This lot can be purchased as land only or as a complete package that includes the cost of the build with luxury home builder, Standing Rock Construction. A prime opportunity to create your dream home in an unbeatable location—don't miss out! See the documents tab for details.

Essential Information

  • MLS® #6831290
  • Price$575,000
  • Acres1.11
  • TypeLand
  • StatusActive

Community Information

  • Address6213 E Carriage Drive (unit 2)
  • CityCave Creek
  • CountyMaricopa
  • StateAZ
  • Zip Code85331

Amenities

  • ViewCity Lights, Mountain(s)

Exterior

Lot Description

East/West Exposure, Cul-De-Sac, North/South Exp

School Information

  • DistrictCave Creek Unified District
  • MiddleSonoran Trails Middle School
  • HighCactus Shadows High School

Elementary

Black Mountain Elementary School

Additional Information

  • ZoningR-43

Listing Details

  • OfficeCompass Point Realty
Please provide a valid email address.

Compass Point Realty.

Information Deemed Reliable But Not Guaranteed. All information should be verified by the recipient and none is guaranteed as accurate by ARMLS. ARMLS Logo indicates that a property listed by a real estate brokerage other than Launch Real Estate LLC. Copyright 2025 Arizona Regional Multiple Listing Service, Inc. All rights reserved.

Listing information last updated on November 29th, 2025 at 3:33am MST.