Connect

Find us on...

Dashboard

Login using...

Sandra Baldwin

Realtor - Co-Founder at Launch Real Estate

  • Office (602) 397-4300
Questions?

17725 W Estes Way, Goodyear, AZ – $2,227,500

  • 4 Beds
  • 5 Baths
  • 4,050 Sqft
  • .66 Acres
  • 4 Beds
  • 5 Baths
  • 4,050 Sqft
  • .66 Acres

17725 W Estes Way

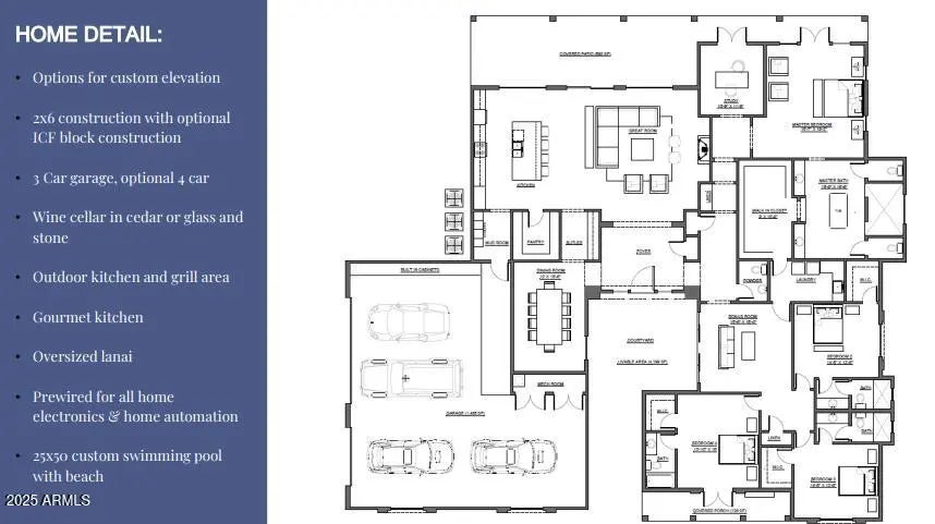
This is your opportunity to build an exquisite custom home in the sought-after Estrella Mountain community of Goodyear. Set on an expansive lot, this residence offers a rare blend of luxury, space, and personalization—providing the perfect canvas for your dream home. Designed around a captivating great room floor plan, this home invites you to tailor every detail to your vision. From flooring to finishes, buyers have the exclusive opportunity to hand-select their desired style, creating a living space that is truly one-of-a-kind. At the heart of the home lies a stunning gourmet kitchen where function meets elegance. Choose your preferred stone for the island, countertops, and backsplash, while enjoying top-tier features including soft-close cabinets, a pot filler, and a spacious butler's pantry with separate prep area. With 42" upper cabinets and 30" lowers, storage is plentiful, and the 3cm edge profile on all counters adds a refined touch. Throughout the home, 8" baseboards, solid core doors, and your choice of 12x24 or 24x36 tile in all wet areas contribute to a cohesive and luxurious aesthetic. Each bathroom is finished with custom stone and tile showers, with the master bath boasting a spa-like dual body system and satin nickel Moen fixtures. Step outdoors into a private resort-style retreat. A fully equipped outdoor kitchen with a grill, icemaker, and dual-burner cooktop sets the stage for unforgettable gatherings, while the wood-burning fireplace invites cozy evenings under the stars. The showstopping 25x50 swim-up beach pool with spill-over hot tub offers the ultimate in relaxation and entertainment. For effortless hosting, a dedicated wet bar complete with sink, refrigerator, and icemaker ensures drinks are always on hand. Indulge in the opportunity to create your dream home with this exceptional custom residence. From the meticulously designed kitchen to the luxurious outdoor oasis, every detail has been carefully considered to provide the ultimate in comfort, style, and functionality. Embrace the chance to curate a space that reflects your unique vision, and experience the epitome of elegance and refinement in this remarkable custom home. Renders are for visualization purposes only and do not represent finishes. Buyer has the opportunity to pick the style & finishes of their liking.

Essential Information

  • MLS® #6851327
  • Price$2,227,500
  • Bedrooms4
  • Bathrooms5.00
  • Square Footage4,050
  • Acres0.66
  • Year Built2025
  • TypeResidential
  • Sub-TypeSingle Family Residence
  • StatusActive

Community Information

  • Address17725 W Estes Way
  • CityGoodyear
  • CountyMaricopa
  • StateAZ
  • Zip Code85338

Subdivision

ESTRELLA MOUNTAIN RANCH PARCEL 76

Amenities

  • UtilitiesAPS, SW Gas
  • Parking Spaces8
  • ParkingGarage Door Opener, RV Garage
  • # of Garages4
  • ViewCity Lights, Mountain(s)
  • Has PoolYes

Amenities

Pool, Golf, Lake, Gated, Tennis Court(s), Playground, Biking/Walking Path, Fitness Center

Interior

  • HeatingElectric
  • CoolingCeiling Fan(s)
  • FireplaceYes
  • FireplacesOther
  • # of Stories1

Interior Features

Walk-in Pantry, High Speed Internet, Double Vanity, Eat-in Kitchen, 9+ Flat Ceilings, Vaulted Ceiling(s), Kitchen Island, Full Bth Master Bdrm, Separate Shwr & Tub

Appliances

Dryer, Washer, Refrigerator, Built-in Microwave, Dishwasher, Disposal, Gas Cooktop

Exterior

  • RoofTile
  • ConstructionStucco, Wood Frame, Painted

Exterior Features

Built-in BBQ, Covered Patio(s), Patio

Lot Description

Desert Front, Auto Timer H2O Front, Auto Timer H2O Back

Windows

Dual Pane, ENERGY STAR Qualified Windows

School Information

  • HighEstrella Foothills High School

District

Buckeye Union High School District

Elementary

Estrella Mountain Elementary School

Middle

Estrella Mountain Elementary School

Listing Details

  • OfficeMy Home Group Real Estate
Please provide a valid email address.

My Home Group Real Estate.

Information Deemed Reliable But Not Guaranteed. All information should be verified by the recipient and none is guaranteed as accurate by ARMLS. ARMLS Logo indicates that a property listed by a real estate brokerage other than Launch Real Estate LLC. Copyright 2026 Arizona Regional Multiple Listing Service, Inc. All rights reserved.

Listing information last updated on April 2nd, 2026 at 1:43am MST.