Connect

Find us on...

Dashboard

Login using...

Sandra Baldwin

Realtor - Co-Founder at Launch Real Estate

  • Office (602) 397-4300
Questions?

661 S Creekside Drive, Show Low, AZ – $299,500

  • 2 Beds
  • 3 Baths
  • 901 Sqft
  • .22 Acres
  • 2 Beds
  • 3 Baths
  • 901 Sqft
  • .22 Acres

661 S Creekside Drive

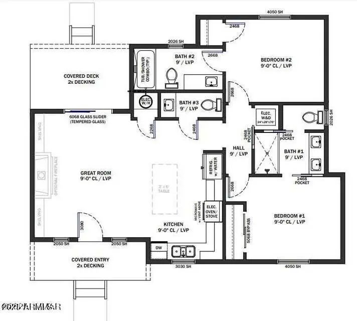
UNDER $300,000 for a brand new home is an unbelievable opportunity. The future of Show Low is in Show Low Bluff. This home is to be built using the buyers financing. A $7000 incentive to either buy down the loan or help with money down is available to you. The home features two primary suites with ensuites and a half bath for your guests. The thoughtful floor plan not only provides plenty of natural light and a feeling of spaciousness, but it also provide amazing outdoor living potential with front and back decks. Buyer to purchase the lot for $55,000 and contract with the builder for $244,500.

Essential Information

  • MLS® #6865070
  • Price$299,500
  • Bedrooms2
  • Bathrooms3.00
  • Square Footage901
  • Acres0.22
  • Year Built2026
  • TypeResidential
  • Sub-TypeSingle Family Residence
  • StatusActive

Community Information

  • Address661 S Creekside Drive
  • SubdivisionSHOW LOW BLUFF PHASE 1A
  • CityShow Low
  • CountyNavajo
  • StateAZ
  • Zip Code85901

Amenities

  • UtilitiesAPS, Unisource
  • Parking Spaces2
  • PoolNone

Interior

  • HeatingNatural Gas
  • CoolingCentral Air
  • FireplaceYes
  • FireplacesLiving Room
  • # of Stories1

Interior Features

Double Vanity, Eat-in Kitchen, 2 Master Baths, Full Bth Master Bdrm

Exterior

  • Exterior FeaturesCovered Patio(s)
  • WindowsDual Pane
  • RoofComposition
  • ConstructionLap Siding, Wood Frame

Lot Description

Gravel/Stone Front, Gravel/Stone Back

School Information

  • DistrictShow Low Unified District
  • MiddleShow Low Junior High School
  • HighShow Low High School

Elementary

Whipple Ranch Elementary School

Listing Details

  • OfficeTorreon Realty
Please provide a valid email address.

Torreon Realty.

Information Deemed Reliable But Not Guaranteed. All information should be verified by the recipient and none is guaranteed as accurate by ARMLS. ARMLS Logo indicates that a property listed by a real estate brokerage other than Launch Real Estate LLC. Copyright 2025 Arizona Regional Multiple Listing Service, Inc. All rights reserved.

Listing information last updated on November 22nd, 2025 at 6:19pm MST.