Connect

Find us on...

Dashboard

Login using...

Sandra Baldwin

Realtor - Co-Founder at Launch Real Estate

  • Office (602) 397-4300
Questions?

111 S Greenfield Road (unit 547), Mesa, AZ – $164,500

  • 1 Bed
  • 2 Baths
  • 808 Sqft
  • ½ Acres
  • 1 Bed
  • 2 Baths
  • 808 Sqft
  • ½ Acres

111 S Greenfield Road (unit 547)

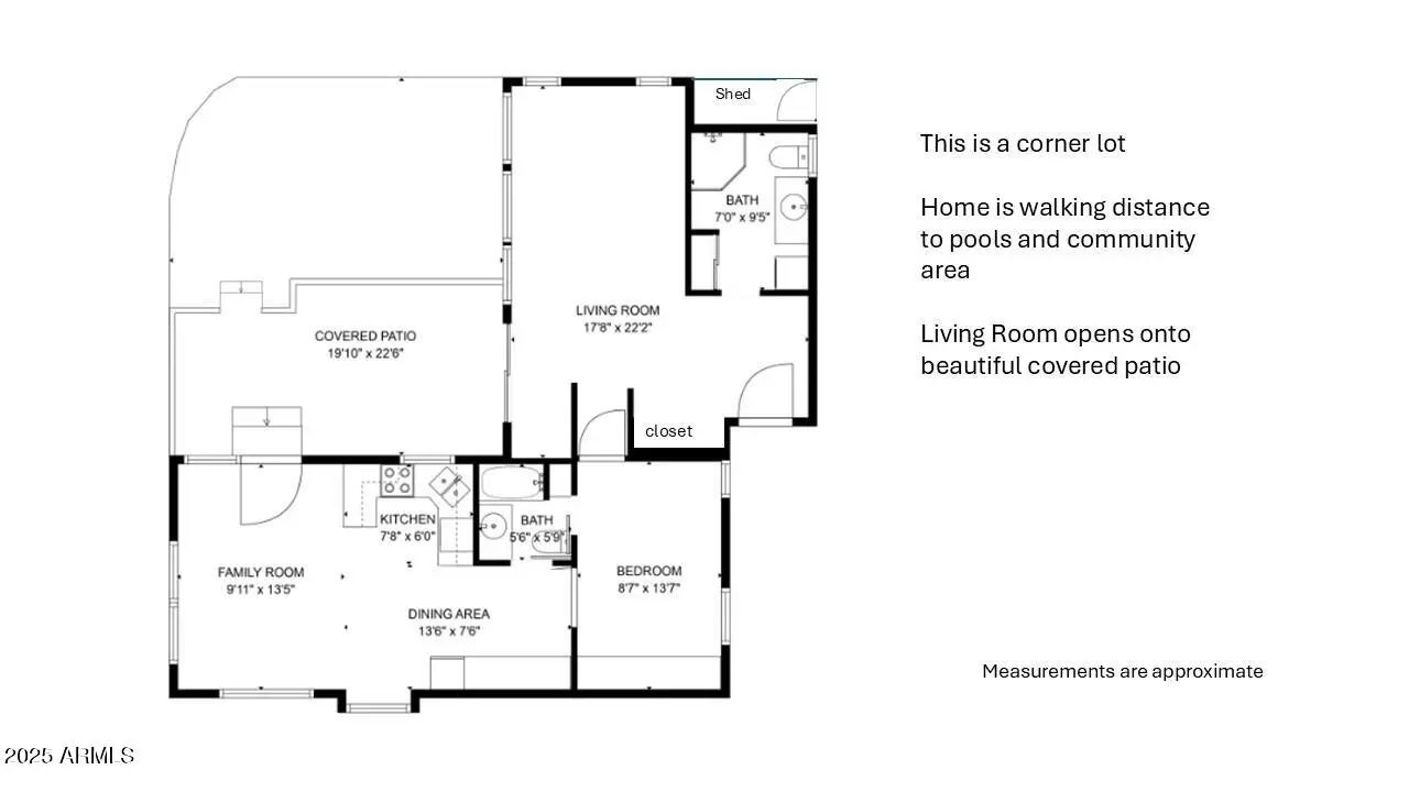
OWN YOUR LAND!! Ready to embrace vibrant 55+ living? Imagine owning your slice of Arizona paradise in this charming corner lot! Picture yourself relaxing on the east-facing covered deck, perfect for entertaining, with handy storage below. Inside, discover a bright kitchen with a skylight, vaulted ceilings and a garden window to hold your favorite plants or herbs. The spacious Arizona room is ideal for hobbies or a home office, complete with a ¾ bath and laundry. Home has a built in audio system and in ceiling speakers. Enjoy extra storage in the bedroom, and the added privacy of front door blinds. Located in a gated community near shopping and dining in Mesa, Chandler, and Gilbert, this furnished, turnkey home offers resort-style living at its finest. Home is being sold As Is.

Essential Information

  • MLS® #6868689
  • Price$164,500
  • Bedrooms1
  • Bathrooms2.00
  • Square Footage808
  • Acres0.05
  • Year Built1988
  • TypeResidential
  • Sub-TypeMfg/Mobile Housing
  • StatusActive

Community Information

  • SubdivisionGREENFIELD VILLAGE RESORT
  • CityMesa
  • CountyMaricopa
  • StateAZ
  • Zip Code85206

Address

111 S Greenfield Road (unit 547)

Amenities

  • UtilitiesSRP
  • Parking Spaces1
  • ParkingPermit Required
  • PoolNone

Amenities

Pickleball, Gated, Community Spa Htd, Near Bus Stop, Community Media Room, Coin-Op Laundry, Guarded Entry, Tennis Court(s), Fitness Center

Interior

  • AppliancesElectric Cooktop
  • HeatingElectric
  • CoolingCentral Air
  • # of Stories1

Interior Features

High Speed Internet, Eat-in Kitchen, Furnished(See Rmrks), Vaulted Ceiling(s), Pantry, Full Bth Master Bdrm, Laminate Counters

Exterior

  • Exterior FeaturesCovered Patio(s)
  • WindowsSkylight(s), Dual Pane
  • RoofComposition
  • ConstructionVinyl Siding, Wood Frame

Lot Description

East/West Exposure, Gravel/Stone Front, Gravel/Stone Back

School Information

  • DistrictAdult
  • ElementaryAdult
  • MiddleAdult
  • HighAdult

Listing Details

  • OfficeCactus Valley Realty
Please provide a valid email address.

Price Change History for 111 S Greenfield Road (unit 547), Mesa, AZ (MLS® #6868689)

Date Details Change
Price Reduced from $167,000 to $164,500 $2,500 (1.50%)
Price Reduced from $168,000 to $167,000 $1,000 (0.60%)

Cactus Valley Realty.

Information Deemed Reliable But Not Guaranteed. All information should be verified by the recipient and none is guaranteed as accurate by ARMLS. ARMLS Logo indicates that a property listed by a real estate brokerage other than Launch Real Estate LLC. Copyright 2025 Arizona Regional Multiple Listing Service, Inc. All rights reserved.

Listing information last updated on December 26th, 2025 at 8:03pm MST.