Connect

Find us on...

Dashboard

Login using...

Sandra Baldwin

Realtor - Co-Founder at Launch Real Estate

  • Office (602) 397-4300
Questions?

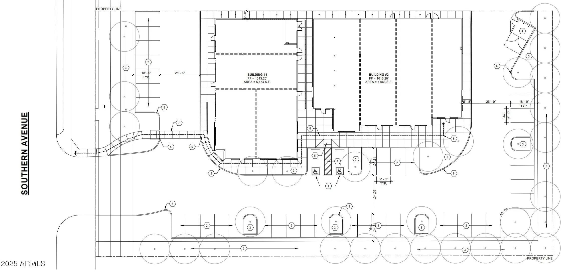
5135 W Southern Avenue, Laveen, AZ – $6,000

  • $6k Price
  • 4,000 Sqft
  • $6k Price
  • 4,000 Sqft

5135 W Southern Avenue

One of the best priced retail buildings in Laveen. Rare opportunity to lease under construction/ new commercial building in the highly sought after Laveen market with 24 to 26 feet ceilings. Soon to be move in condition for retail office medical use. Building 2 is up to ~ 2000 to 4000 sq/ft in a single-story retail office building with great visibility on Southern. Building 1 is 5,134 sq/ft. Multiple configurations for your business. Property has three suites that can be combined into one (~4,000 sqft) or individual suites (1000 sqft to 5000 sqft) .** Lessee to verify all facts, figures, measurements**

Essential Information

  • MLS® #6877334
  • Price$6,000
  • Square Footage4,000
  • Acres0.00
  • Year Built2026
  • TypeComm/Industry Lease
  • Sub-TypeCommercial, Office
  • StatusActive

Community Information

  • Address5135 W Southern Avenue
  • CityLaveen
  • CountyMaricopa
  • StateAZ
  • Zip Code85339

Amenities

  • Parking Spaces41
  • ParkingPrivate

Interior

  • HeatingCeiling
  • CoolingCentral Air

Exterior

  • RoofTile, Built-Up
  • ConstructionStucco

Additional Information

  • ZoningC-2

Listing Details

  • OfficeRealty ONE Group
Please provide a valid email address.

Realty ONE Group.

Information Deemed Reliable But Not Guaranteed. All information should be verified by the recipient and none is guaranteed as accurate by ARMLS. ARMLS Logo indicates that a property listed by a real estate brokerage other than Launch Real Estate LLC. Copyright 2026 Arizona Regional Multiple Listing Service, Inc. All rights reserved.

Listing information last updated on February 16th, 2026 at 10:01am MST.