Connect

Find us on...

Dashboard

Login using...

Sandra Baldwin

Realtor - Co-Founder at Launch Real Estate

  • Office (602) 397-4300
Questions?

1204 Az-179 -- (unit -), Sedona, AZ – $349,000

  • $349k Price
  • .35 Acres
  • $349k Price
  • .35 Acres

1204 Az-179 -- (unit -)

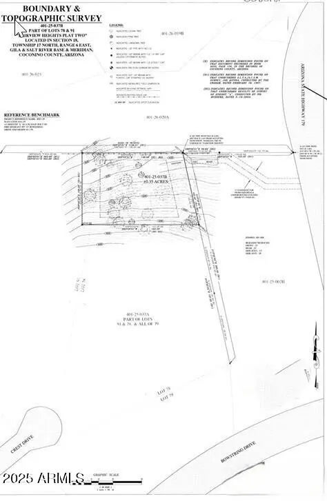
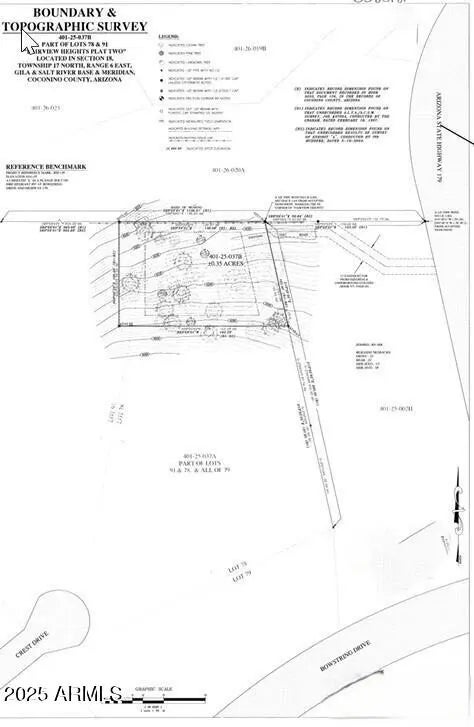
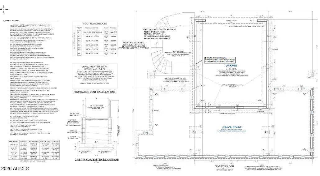
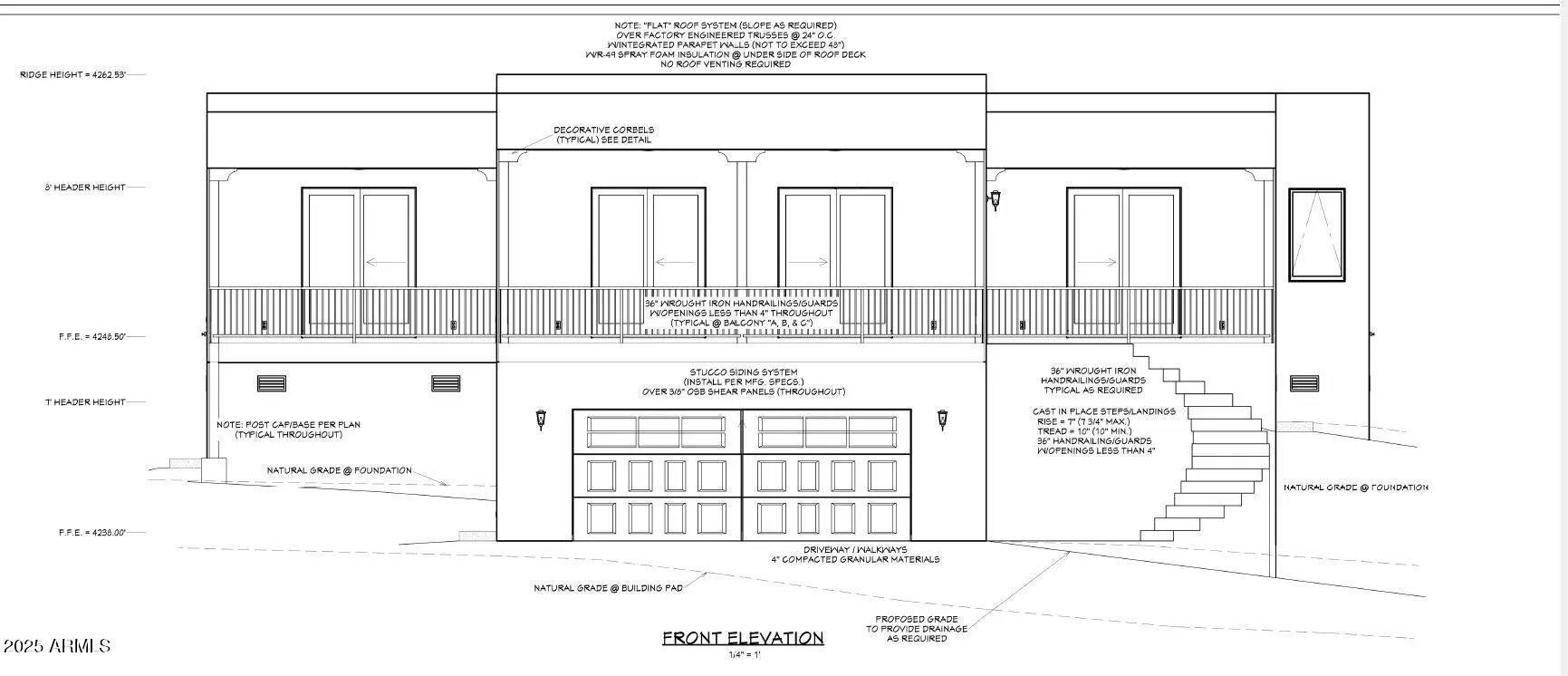
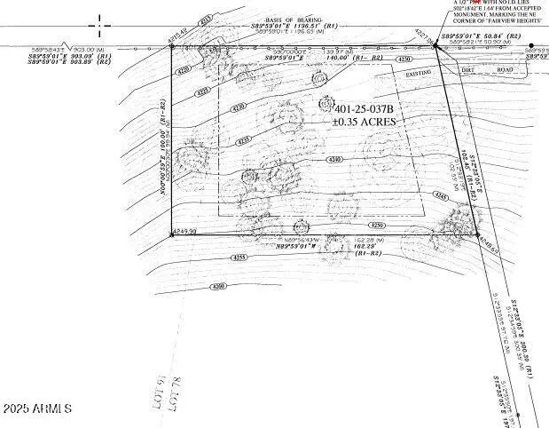
Rare opportunity to own a highly improved .35 of an acre vacant lot in Sedona's sought-after Chapel area, just off scenic Highway 179 with close proximity to oak creek.This exceptional parcel combines privacy, natural beauty, and serious development value within minutes of world-class walking paths, bike paths, and iconic red rock vistas. Can you say VIEW!!!The lot comes with a full set of engineered building plans and fire department-approved driveway plans, saving valuable time and expense. A completed soil test is on file, and ALL utility infrastructure conduit is already in place: city water, sewer, electricity, and communications—with lines ready to be pulled when building permit is issued. Hard work has been done for you! A 1½-inch waterline with installed outdoor faucet provides strong water pressure, sufficient to support a future in-home fire sprinkler system. The driveway is nearly complete, with curb-cut access per engineered specifications, offering easy entry and thoughtful site planning. Set in a non HOA neighborhood, the property enjoys tremendous in your face views offering the best of Sedona's natural environment with no community restrictions. 1/2 block away from Sedona's Trolley system for easy on off to town and to infamous hiking trails, or go off roading 5 minutes away on Broken Arrow Trail. Imagine waking up to these jaw dropping views everyday! Imagine listening to the sounds of the creek! WOWSA! Seller has submitted home plans to the city for final approval and should be fully approved by the end of January for a 1927 square foot 2 bedroom 2 bath home with additional office home with 3 balconies with the garage being on the ground level and the main living being above your garage for an even more spectacular view corridor! All the heavy lifting has been completed! So what are you waiting for? This build-ready parcel presents an outstanding opportunity for a dream home, vacation retreat, or investment project.

Essential Information

  • MLS® #6901898
  • Price$349,000
  • Acres0.35
  • TypeLand
  • StatusActive

Community Information

  • Address1204 Az-179 -- (unit -)
  • SubdivisionFAIRVIEW HEIGHTS 2
  • CitySedona
  • CountyCoconino
  • StateAZ
  • Zip Code86336

Amenities

View

Mountain(s), City, Creek/Stream, Panoramic, Red Rocks/Boulders, Trees/Woods, City Lights

Exterior

  • Lot DescriptionEast/West Exposure

Additional Information

  • ZoningRES

Listing Details

  • OfficeBarbara Baker Realty LLC
Please provide a valid email address.

Price Change History for 1204 Az-179 -- (unit -), Sedona, AZ (MLS® #6901898)

Date Details Change
Price Reduced from $395,000 to $349,000 $46,000 (11.65%)

Barbara Baker Realty LLC.

Information Deemed Reliable But Not Guaranteed. All information should be verified by the recipient and none is guaranteed as accurate by ARMLS. ARMLS Logo indicates that a property listed by a real estate brokerage other than Launch Real Estate LLC. Copyright 2026 Arizona Regional Multiple Listing Service, Inc. All rights reserved.

Listing information last updated on January 18th, 2026 at 4:13am MST.