Connect

Find us on...

Dashboard

Login using...

Sandra Baldwin

Realtor - Co-Founder at Launch Real Estate

  • Office (602) 397-4300
Questions?

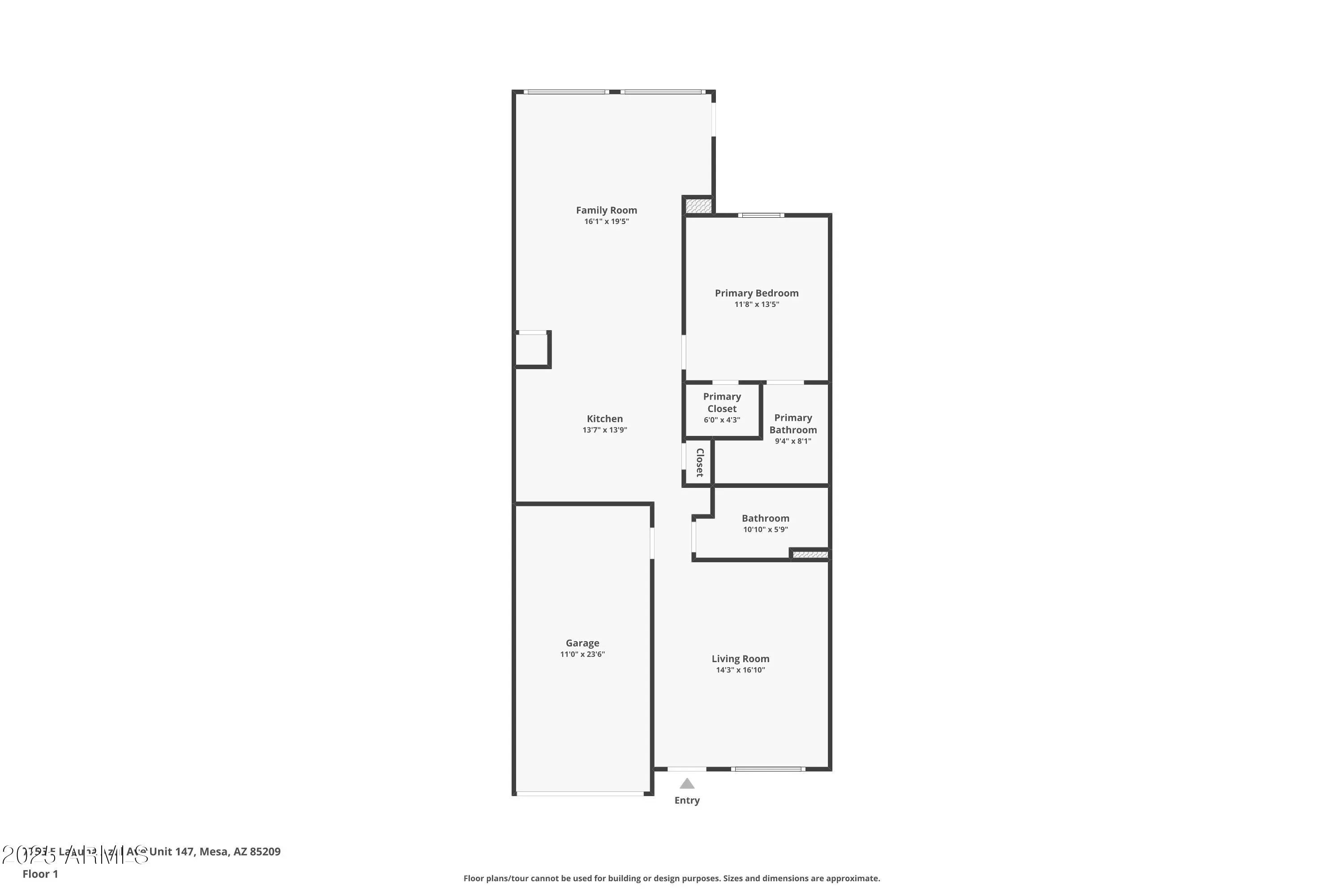
7755 E Laguna Azul Avenue (unit 147), Mesa, AZ – $329,800

  • 1 Bed
  • 2 Baths
  • 1,200 Sqft
  • .03 Acres
  • 1 Bed
  • 2 Baths
  • 1,200 Sqft
  • .03 Acres

7755 E Laguna Azul Avenue (unit 147)

NEW HVAC SYSTEM to be installed 11-2025, this beautiful golf course condo! Newly renovated kitchen and bathrooms! (Newer white fridge, in the garage conveys) This move in ready home is ready for you! Enjoy your coffee, while watching the golfers from your breakfast table. Front living room, east facing front window, decorative ceiling fan and light. Beautiful tile throughout the property. Proceed into the spacious and open kitchen with custom center island, plenty of cabinets. Custom open and expanded back family room with spectacular westerly views of the golf course.

Essential Information

  • MLS® #6904047
  • Price$329,800
  • Bedrooms1
  • Bathrooms2.00
  • Square Footage1,200
  • Acres0.03
  • Year Built1993
  • TypeResidential
  • Sub-TypeTownhouse
  • StyleOther
  • StatusActive

Community Information

  • CityMesa
  • CountyMaricopa
  • StateAZ
  • Zip Code85209

Address

7755 E Laguna Azul Avenue (unit 147)

Subdivision

SUNLAND VILLAGE EAST GOLF CONDOMINIUMS UNIT TWO

Amenities

  • UtilitiesSRP
  • Parking Spaces1
  • ParkingGarage Door Opener
  • # of Garages1

Amenities

Pool, Golf, Pickleball, Community Spa Htd, Tennis Court(s)

Interior

  • AppliancesElectric Cooktop
  • HeatingElectric
  • CoolingCentral Air
  • # of Stories1

Interior Features

High Speed Internet, Granite Counters, Eat-in Kitchen, Breakfast Bar, Kitchen Island, 3/4 Bath Master Bdrm

Exterior

  • Exterior FeaturesPatio
  • WindowsDual Pane
  • RoofTile
  • ConstructionStucco, Painted, Block

Lot Description

Borders Common Area, East/West Exposure, On Golf Course, Gravel/Stone Front, Grass Back

School Information

  • DistrictAdult
  • ElementaryAdult
  • MiddleAdult
  • HighAdult

Listing Details

  • OfficeHomeSmart
Please provide a valid email address.

Price Change History for 7755 E Laguna Azul Avenue (unit 147), Mesa, AZ (MLS® #6904047)

Date Details Change
Price Reduced from $329,900 to $329,800 $100 (0.03%)
Price Reduced from $334,500 to $329,900 $4,600 (1.38%)
Price Reduced from $334,600 to $334,500 $100 (0.03%)
Price Reduced from $334,700 to $334,600 $100 (0.03%)
Price Reduced from $334,800 to $334,700 $100 (0.03%)
Show More (6)

HomeSmart.

Information Deemed Reliable But Not Guaranteed. All information should be verified by the recipient and none is guaranteed as accurate by ARMLS. ARMLS Logo indicates that a property listed by a real estate brokerage other than Launch Real Estate LLC. Copyright 2025 Arizona Regional Multiple Listing Service, Inc. All rights reserved.

Listing information last updated on December 27th, 2025 at 3:03pm MST.