Connect

Find us on...

Dashboard

Login using...

Sandra Baldwin

Realtor - Co-Founder at Launch Real Estate

  • Office (602) 397-4300
Questions?

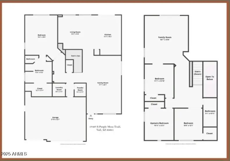
17407 S Purple Mesa Trail, Vail, AZ – $447,500

  • 4 Beds
  • 3 Baths
  • 2,930 Sqft
  • .22 Acres
  • 4 Beds
  • 3 Baths
  • 2,930 Sqft
  • .22 Acres

17407 S Purple Mesa Trail

Welcome home to nearly a 1/4 acre lot in award winning Vail Schools with a two story, three car garage, 2900+ sq ft retreat with real grass in the backyard, water feature, hot tub, and workshop/shed. Surrounded by walkable green belts in a community with amenities including pool, hot tub, basketball court, shade structures and play areas. Upgraded flooring (no carpet) throughout the home with the primary with garden tub downstairs, a large bonus loft upstairs (could be converted into a 5th bedroom or two smaller bedrooms for 6 total bedrooms.) Kitchen has a custom copper sink, extensive counter space, gas range, and maple cabinets. The backyard oasis with mountain views has a workshop/shed/playhouse, with a fountain, real grass and a hot tub. Welcome home! One bedroom has a walk in closet with tons of extra shelves. Another has a built in wall and gun safe. The spacious primary bedroom is downstairs and has a large picture window giving you a view of the amazing backyard. Gorgeous slate tiles top the double vanity; separate soaking tub, shower area, private toilet stall and floors giving it a warm rich look. The soaring 15 foot ceilings in the formal living and dining room areas make this space look and feel colossal. The rustic-themed kitchen has newer appliances, warm rich colored tile and custom finished maple cabinets with pull out shelves. A custom copper sink and faucets adds to the rustic ambiance of this eat-in kitchen which has extra seating at the island and double sliding doors to the large back patio. There is a misting system and a large 6 person hot tub on the patio. The downstairs family room allows TV viewing from the kitchen and also looks onto THE AMAZING back yard. Many upgrades have been added to this home. The dark wood floors give the rooms a regal feel. Tinted windows, 2" wooden blinds and ceiling fans help with climate control. A newer water heater is in the garage. The exterior is being repainted. Much of the roof was replaced recently - move in and enjoy! If you ever want to leave the house, the community has an Olympic sized gated pool, hot tub, play pool, rest rooms, a park with walking /biking trails, a playground and basketball court. Many community events allow you to get to know your neighbors and the area itself. Peaceful, clean, quiet desert surrounds you and shopping, restaurants and stores of all kinds are just a few miles away. Come home!

Essential Information

  • MLS® #6917963
  • Price$447,500
  • Bedrooms4
  • Bathrooms3.00
  • Square Footage2,930
  • Acres0.22
  • Year Built2006
  • TypeResidential
  • Sub-TypeSingle Family Residence
  • StyleContemporary
  • StatusActive

Community Information

  • Address17407 S Purple Mesa Trail
  • SubdivisionSYCAMORE CANYON
  • CityVail
  • CountyPima
  • StateAZ
  • Zip Code85641

Amenities

  • UtilitiesSW Gas, City Electric
  • Parking Spaces6
  • ParkingGarage Door Opener
  • # of Garages3

Amenities

Pool, Community Spa, Community Spa Htd, Playground, Biking/Walking Path

Interior

  • # of Stories2

Interior Features

Non-laminate Counter, High Speed Internet, Double Vanity, Master Downstairs, Eat-in Kitchen, 9+ Flat Ceilings, Vaulted Ceiling(s), Kitchen Island, Separate Shwr & Tub

Appliances

Dryer, Washer, Gas Stub for Range, Refrigerator, Built-in Microwave, Dishwasher, Disposal, Gas Range, Gas Oven, Gas Cooktop

Heating

ENERGY STAR Qualified Equipment, Natural Gas

Cooling

Central Air, Ceiling Fan(s), ENERGY STAR Qualified Equipment, Programmable Thmstat

Exterior

  • Exterior FeaturesCovered Patio(s)
  • WindowsDual Pane
  • RoofTile
  • ConstructionStucco, Wood Frame

Lot Description

North/South Exposure, Sprinklers In Front, Desert Front, Gravel/Stone Front, Gravel/Stone Back, Grass Back, Auto Timer H2O Front

School Information

  • DistrictVail Unified District
  • ElementarySycamore Elementary School
  • MiddleCorona Foothills Middle School

Listing Details

  • OfficeTierra Antigua Realty, LLC
Please provide a valid email address.

Price Change History for 17407 S Purple Mesa Trail, Vail, AZ (MLS® #6917963)

Date Details Change
Price Reduced from $449,000 to $447,500 $1,500 (0.33%)
Price Reduced from $450,000 to $449,000 $1,000 (0.22%)
Price Reduced from $460,000 to $450,000 $10,000 (2.17%)
Price Increased from $448,000 to $460,000 $12,000 (2.68%)
Price Reduced from $450,000 to $448,000 $2,000 (0.44%)

Tierra Antigua Realty, LLC.

Information Deemed Reliable But Not Guaranteed. All information should be verified by the recipient and none is guaranteed as accurate by ARMLS. ARMLS Logo indicates that a property listed by a real estate brokerage other than Launch Real Estate LLC. Copyright 2026 Arizona Regional Multiple Listing Service, Inc. All rights reserved.

Listing information last updated on April 4th, 2026 at 1:52am MST.