Connect

Find us on...

Dashboard

Login using...

Sandra Baldwin

Realtor - Co-Founder at Launch Real Estate

  • Office (602) 397-4300
Questions?

337 S Pleasant Street, Prescott, AZ – $450,000

  • 1 Bed
  • 2 Baths
  • 798 Sqft
  • .26 Acres
  • 1 Bed
  • 2 Baths
  • 798 Sqft
  • .26 Acres

337 S Pleasant Street

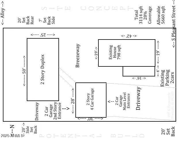
Incredible investment opportunity just one block from Prescott's iconic Mt. Vernon St! This property features City-approved concept plans for a high-density multi-family development—ideal for college rentals or short-term stays like VRBO. Just a short walk to Downtown Prescott, the existing 1954 Sears and Robuck catalog - 1 Bedroom 1.5 Bath home allows for immediate rental income while you develop the remaining potential. Plans include a fourplex and a 2-story detached garage, using only 28% of the allowed 50% lot coverage. Enjoy mature trees, native landscaping, and beautiful views of Thumb Butte in a quiet, convenient location close to schools, work, and the Prescott Courthouse Square. Build using the pre-approved concept or bring your own vision. Buyer to verify their own permitting requirements. Seller requires a drive-by prior to scheduling a showing and listing agent must accompany--this is one you must see to appreciate the possibilities!

Essential Information

  • MLS® #6925191
  • Price$450,000
  • Bedrooms1
  • Bathrooms2.00
  • Square Footage798
  • Acres0.26
  • Year Built1954
  • TypeResidential
  • Sub-TypeSingle Family Residence
  • StyleOther
  • StatusActive

Community Information

  • Address337 S Pleasant Street
  • SubdivisionBASHFORD TRACT
  • CityPrescott
  • CountyYavapai
  • StateAZ
  • Zip Code86303

Amenities

  • UtilitiesAPS, City Gas
  • Parking Spaces4
  • ViewMountain(s)

Interior

  • AppliancesGas Cooktop
  • HeatingOther, Natural Gas
  • # of Stories1

Interior Features

High Speed Internet, Other, See Remarks, Pantry, Full Bth Master Bdrm, Laminate Counters

Cooling

Ceiling Fan(s), Window/Wall Unit

Exterior

  • Exterior FeaturesCovered Patio(s), Storage
  • WindowsDual Pane
  • RoofMetal
  • ConstructionOther, Wood Frame

Lot Description

Natural Desert Back, Natural Desert Front

School Information

  • DistrictPrescott Unified District
  • ElementaryAbia Judd Elementary School
  • MiddleGranite Mountain Middle School
  • HighPrescott High School

Listing Details

  • OfficeCode of the West
Please provide a valid email address.

Code of the West.

Information Deemed Reliable But Not Guaranteed. All information should be verified by the recipient and none is guaranteed as accurate by ARMLS. ARMLS Logo indicates that a property listed by a real estate brokerage other than Launch Real Estate LLC. Copyright 2026 Arizona Regional Multiple Listing Service, Inc. All rights reserved.

Listing information last updated on March 4th, 2026 at 9:04am MST.