Connect

Find us on...

Dashboard

Login using...

Sandra Baldwin

Realtor - Co-Founder at Launch Real Estate

  • Office (602) 397-4300
Questions?

20644 W Mcdonald Drive, Buckeye, AZ – $525,900

  • 2 Beds
  • 3 Baths
  • 1,466 Sqft
  • .14 Acres
  • 2 Beds
  • 3 Baths
  • 1,466 Sqft
  • .14 Acres

20644 W Mcdonald Drive

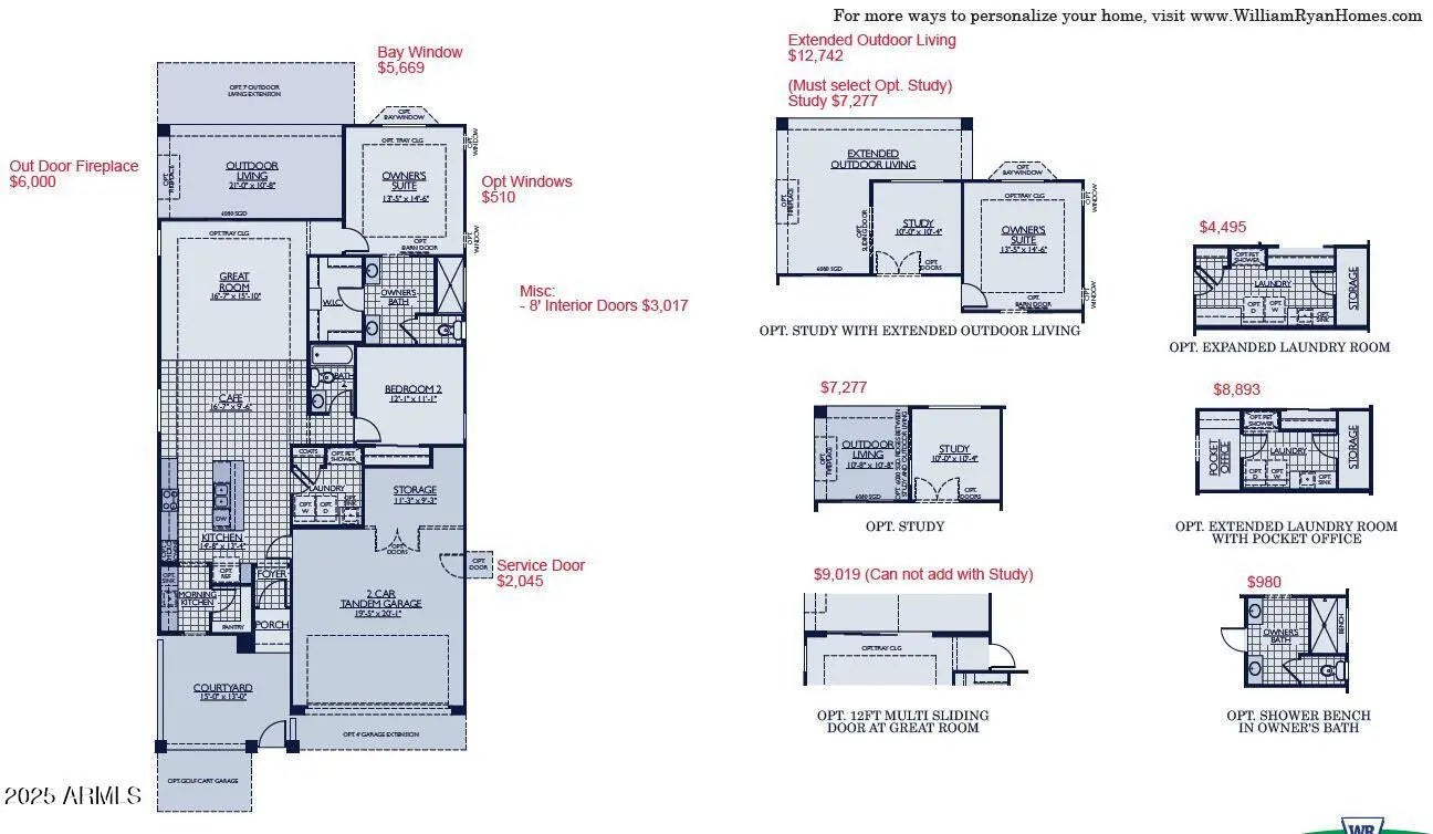
**NEW CONSTRUCTION** Experience the new home-buying journey from the ground up! There are multiple 'Standard Finishes' within the list price for Granite, Tile, Carpet, and Cabinets. You will meet with a professional designer to guide you through the process to personalize your dream home! This home features a spacious Kitchen w/ a Large Granite Island, Walk-in Pantry, and SS appliances. The Owner's Suite boasts split vanities and a ZERO-STEP W/in shower, & W/in Closet. Enjoy SAVINGS with Energy Efficient features: SPRAY FOAM INSULATION, Tankless Hot Water Heater, Water Sense fixtures & more! Splurge a little when you see how much money you are saving with our 3-year Bill Guarantee! Enjoy the Lifestyle of Victory in Verrado with an abundant amount of amenities, activities, and clubs!

Essential Information

  • MLS® #6939982
  • Price$525,900
  • Bedrooms2
  • Bathrooms3.00
  • Square Footage1,466
  • Acres0.14
  • Year Built2025
  • TypeResidential
  • Sub-TypeSingle Family Residence
  • StatusActive

Community Information

  • Address20644 W Mcdonald Drive
  • CityBuckeye
  • CountyMaricopa
  • StateAZ
  • Zip Code85396

Subdivision

VERRADO VICTORY DISTRICT PHASE 8

Amenities

  • UtilitiesAPS, SW Gas
  • Parking Spaces2
  • # of Garages2

Amenities

Pool, Golf, Pickleball, Community Spa, Community Spa Htd, Community Media Room, Tennis Court(s), Biking/Walking Path, Fitness Center

Parking

Garage Door Opener, Direct Access

Interior

  • # of Stories1

Interior Features

High Speed Internet, Smart Home, Granite Counters, Double Vanity, Eat-in Kitchen, 9+ Flat Ceilings, Kitchen Island, Pantry, Full Bth Master Bdrm

Heating

ENERGY STAR Qualified Equipment, Electric

Cooling

Central Air, ENERGY STAR Qualified Equipment, Programmable Thmstat

Exterior

  • RoofTile, Concrete

Exterior Features

Covered Patio(s), Patio, Pvt Yrd(s)Crtyrd(s)

Lot Description

North/South Exposure, Sprinklers In Front, Desert Front, Dirt Back, Auto Timer H2O Front

Windows

Low-Emissivity Windows, Dual Pane, ENERGY STAR Qualified Windows, Vinyl Frame

Construction

Spray Foam Insulation, Stucco, Wood Frame, Painted, Ducts Professionally Air-Sealed

School Information

  • ElementaryLitchfield Elementary School
  • MiddleVerrado Middle School
  • HighAgua Fria High School

District

Agua Fria Union High School District

Listing Details

  • OfficeWilliam Ryan Realty, Inc
Please provide a valid email address.

William Ryan Realty, Inc.

Information Deemed Reliable But Not Guaranteed. All information should be verified by the recipient and none is guaranteed as accurate by ARMLS. ARMLS Logo indicates that a property listed by a real estate brokerage other than Launch Real Estate LLC. Copyright 2025 Arizona Regional Multiple Listing Service, Inc. All rights reserved.

Listing information last updated on December 14th, 2025 at 6:33pm MST.