Connect

Find us on...

Dashboard

Login using...

Sandra Baldwin

Realtor - Co-Founder at Launch Real Estate

  • Office (602) 397-4300
Questions?

50612 N 295 Avenue, Wickenburg, AZ – $849,000

  • 2 Beds
  • 2 Baths
  • 2,462 Sqft
  • 5 Acres
  • 2 Beds
  • 2 Baths
  • 2,462 Sqft
  • 5 Acres

50612 N 295 Avenue

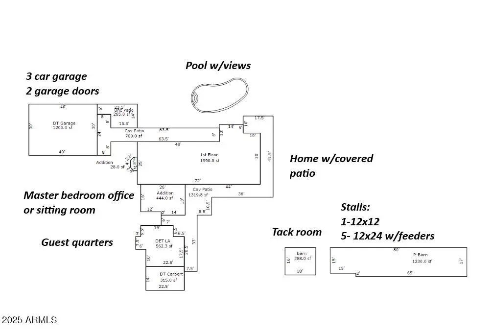
AMAZING VIEWS! HORSE PROPERTY! 5 ACRES! Additional 5 ac available. CASITA! POOL! Completely furnished! 2 bedrooms+an office. Convert the office into a 3rd bedroom. Large master suite w/built in window seat*Beehive fireplace*office w/wet bar w/saguaro rib doors*3 closets-1 large walk-in*master bath w/tile shower*tile counters*built in book shelves. Custom Knotty Alder solid core doors & cabinets. Saltillo tile. Clay tile roof. vanity. Rock fireplace in the livingroom. Casita-Full bath*Knotty Alder doors*Viga beams & tongue/groove ceiling. Beautiful pool. Tack room w/4 saddle racks (inside & out), Beehive fireplace. 6 covered stalls- 1-12x12, 5-12x24 w/feeders*90' round pen*2 hitching posts. Storage unit. Walkin cooler. Exterior-Built in BBque*block gas firepit, pavers*custom water feature Several seating areas outside. Walk out of the French Doors to a covered patio. Numerous fruit trees and mature landscaping. Carport for Casita is located between the Main home & Casita. 3 car garage for main home. Additional 5 acres has plenty of room for your barn, turnout and additional stalls.

Essential Information

  • MLS® #6948143
  • Price$849,000
  • Bedrooms2
  • Bathrooms2.00
  • Square Footage2,462
  • Acres5.00
  • Year Built1973
  • TypeResidential
  • Sub-TypeSingle Family Residence
  • StyleSpanish
  • StatusActive

Community Information

  • Address50612 N 295 Avenue
  • SubdivisionRio Vista Hills
  • CityWickenburg
  • CountyMaricopa
  • StateAZ
  • Zip Code85390

Amenities

  • UtilitiesAPS
  • Parking Spaces4
  • # of Garages3
  • ViewDesert, Mountain(s)
  • Has PoolYes
  • PoolOutdoor, Diving Pool

Parking

RV Access/Parking, Garage Door Opener, Separate Strge Area

Interior

  • HeatingElectric
  • CoolingCentral Air, Ceiling Fan(s)
  • FireplaceYes
  • # of Stories1

Interior Features

Walk-in Pantry, Non-laminate Counter, Double Vanity, Eat-in Kitchen, Wet Bar, Pantry, 3/4 Bath Master Bdrm

Appliances

Dryer, Washer, Refrigerator, Dishwasher, Electric Oven

Fireplaces

Wood Burning, Family Room, Master Bedroom

Exterior

  • WindowsDual Pane
  • RoofSee Remarks, Tile
  • ConstructionStucco, Wood Frame, Painted

Exterior Features

Separate Guest House, Built-in BBQ, Covered Patio(s), Patio, Storage

Lot Description

Sprinklers In Rear, Sprinklers In Front, Desert Back, Desert Front, Gravel/Stone Front, Gravel/Stone Back, Auto Timer H2O Front, Auto Timer H2O Back

School Information

  • DistrictWickenburg Unified District
  • ElementaryHassayampa Elementary School
  • MiddleVulture Peak Middle School
  • HighWickenburg High School

Listing Details

  • OfficeCentury 21 Arizona West
Please provide a valid email address.

Price Change History for 50612 N 295 Avenue, Wickenburg, AZ (MLS® #6948143)

Date Details Change
Price Reduced from $929,000 to $849,000 $80,000 (8.61%)
Price Reduced from $995,000 to $929,000 $66,000 (6.63%)
Price Reduced from $1,290,000 to $995,000 $295,000 (22.87%)
Price Reduced from $1,390,000 to $1,290,000 $100,000 (7.19%)

Century 21 Arizona West.

Information Deemed Reliable But Not Guaranteed. All information should be verified by the recipient and none is guaranteed as accurate by ARMLS. ARMLS Logo indicates that a property listed by a real estate brokerage other than Launch Real Estate LLC. Copyright 2026 Arizona Regional Multiple Listing Service, Inc. All rights reserved.

Listing information last updated on March 10th, 2026 at 7:30am MST.