Connect

Find us on...

Dashboard

Login using...

Sandra Baldwin

Realtor - Co-Founder at Launch Real Estate

  • Office (602) 397-4300
Questions?

17200 W Bell Road (unit 613), Surprise, AZ – $238,000

  • 2 Beds
  • 3 Baths
  • 848 Sqft
  • .06 Acres
  • 2 Beds
  • 3 Baths
  • 848 Sqft
  • .06 Acres

17200 W Bell Road (unit 613)

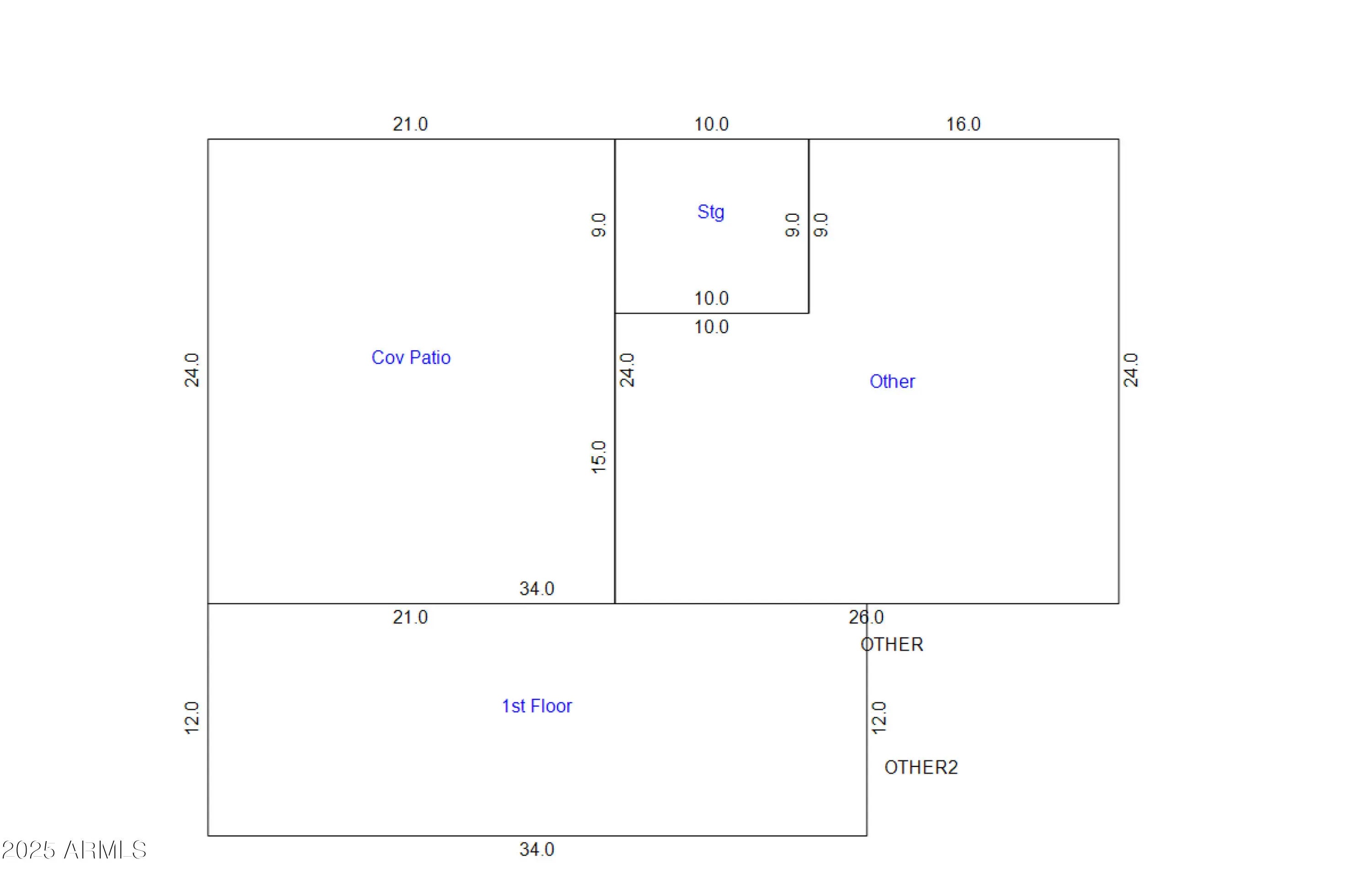
Happy Trails Lot 613 is home to a beautiful Park Model and double sized Arizona Room, is mostly furnished and has updates throughout. The sprawling AZ Room not only is set up as the Family Room with a water closet, wet bar but also includes the Primary Master Suite with Full Bath. The attached shed provides storage for the golf cart, has a Washer & Dryer and lots of additional storage. Plenty of elbow room throughout the home. Golf Cart included! Lot 613 is one of three lots available for sale (lots 612 and 614) from this seller. If you're looking for multiple lots that connect, this your opportunity as all three are side by side. You own the land with no lease payment. An affordable HOA fee includes water, sewer, garbage service and access to all the resort ammenities. Come make this your AZ Desert get-a-way Oasis. Happy Trails Resort is a very lively 55+ Gated Community highlighted by Pickleball & Tennis Courts, Multiple Pools and Spas, Fitness Center, a Host of Craft Clubs, and Restaurant. Lots of Live Entertainment and tons of get-togethers mean there's never a dull moment. Come see what the Happy Trails Lifestyle is all about!

Essential Information

  • MLS® #6950506
  • Price$238,000
  • Bedrooms2
  • Bathrooms3.00
  • Square Footage848
  • Acres0.06
  • Year Built1988
  • TypeResidential
  • Sub-TypeMfg/Mobile Housing
  • StatusActive

Community Information

  • Address17200 W Bell Road (unit 613)
  • SubdivisionHAPPY TRAILS RESORTS NO 3
  • CitySurprise
  • CountyMaricopa
  • StateAZ
  • Zip Code85374

Amenities

  • UtilitiesAPS
  • Parking Spaces4

Amenities

Pool, Golf, Pickleball, Gated, Community Spa Htd, Community Media Room, Coin-Op Laundry, Guarded Entry, Tennis Court(s), Biking/Walking Path, Fitness Center

Interior

  • HeatingElectric
  • CoolingCentral Air
  • # of Stories1

Interior Features

Furnished(See Rmrks), Wet Bar, Full Bth Master Bdrm, Laminate Counters

Exterior

  • ConstructionMetal Siding, Wood Frame

Exterior Features

Covered Deck, Covered Patio(s), Storage

Lot Description

Gravel/Stone Front, Gravel/Stone Back

Roof

Composition, Reflective Coating, Metal

School Information

  • DistrictDysart Unified District
  • ElementaryCimarron Springs Middle School
  • MiddleShadow Ridge High School
  • HighShadow Ridge High School

Listing Details

  • OfficeSurprise Realty
Please provide a valid email address.

Price Change History for 17200 W Bell Road (unit 613), Surprise, AZ (MLS® #6950506)

Date Details Change
Price Reduced from $239,900 to $238,000 $1,900 (0.79%)

Surprise Realty.

Information Deemed Reliable But Not Guaranteed. All information should be verified by the recipient and none is guaranteed as accurate by ARMLS. ARMLS Logo indicates that a property listed by a real estate brokerage other than Launch Real Estate LLC. Copyright 2026 Arizona Regional Multiple Listing Service, Inc. All rights reserved.

Listing information last updated on March 16th, 2026 at 9:15am MST.