Connect

Find us on...

Dashboard

Login using...

Sandra Baldwin

Realtor - Co-Founder at Launch Real Estate

  • Office (602) 397-4300
Questions?

3330 E Main Street (unit 446), Mesa, AZ – $120,000

  • 3 Beds
  • 2 Baths
  • 2,030 Sqft
  • .12 Acres
  • 3 Beds
  • 2 Baths
  • 2,030 Sqft
  • .12 Acres

3330 E Main Street (unit 446)

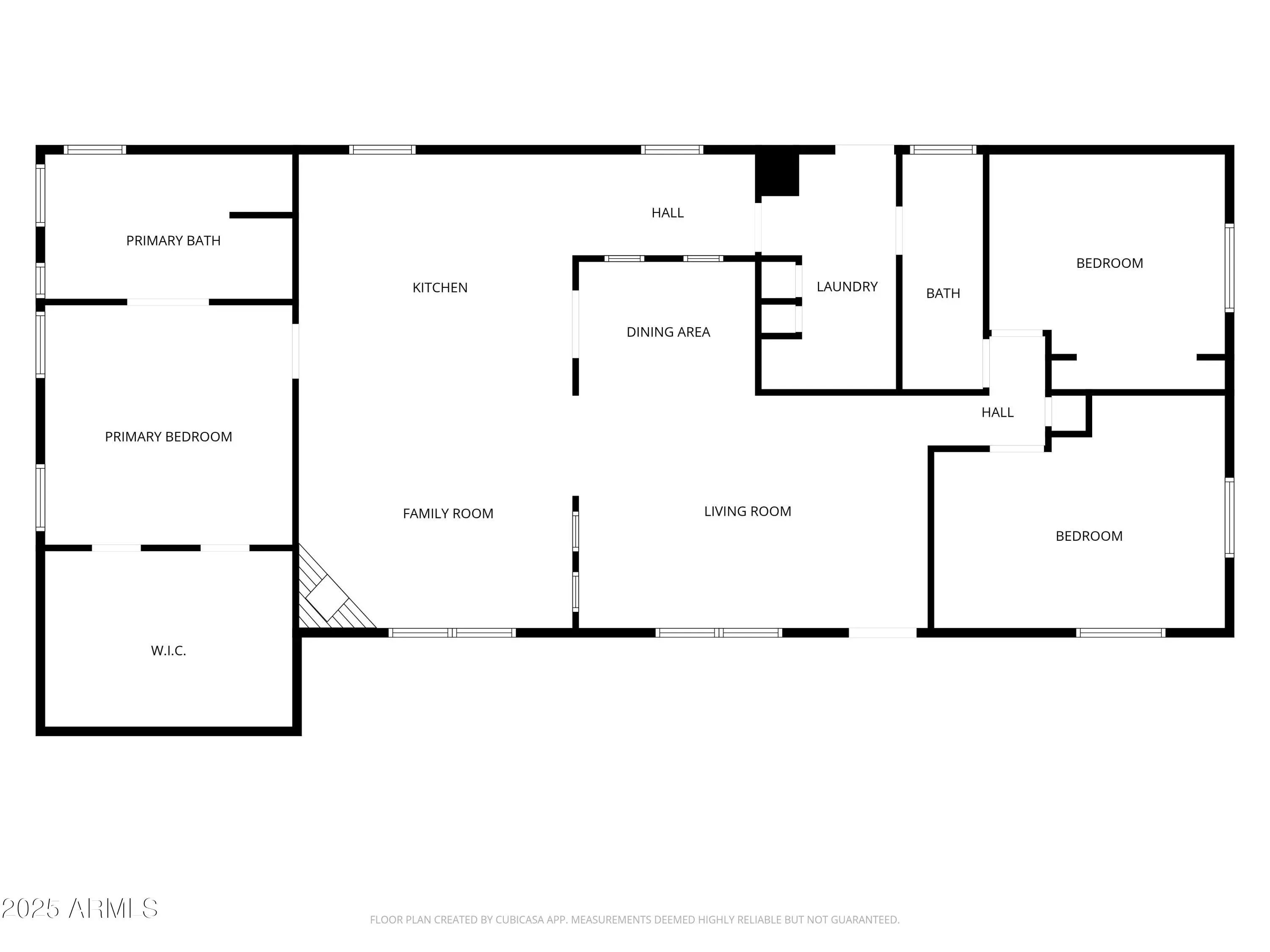
Welcome home to this spacious 3bd/2ba manufactured home located in Cypress Estates, a 55+ community. This beautiful 1993 Crespoint double-wide offers plenty of room at just over 2000sqft. The kitchen is outfitted with updated appliances and ample counter space. From your kitchen you can look out over your generously sized island to the family room and fireplace. The living room and formal dining room with the vaulted ceiling give a wonderfully open feeling as you enter through the cheery front door. The master bedroom is equally well-sized with a very large walk-in closet. Enjoy a soak in the new jacuzzi tub set in place for installation or a steaming shower in the large master bathroom. The two remaining bedrooms make lovely guest rooms or an office. The community pool and hot tub are ready or relaxation or an exercise class. The community center provides a library, meeting area, billiards, shuffleboard, and more. The park provides a putting green and dog park.

Essential Information

  • MLS® #6952567
  • Price$120,000
  • Bedrooms3
  • Bathrooms2.00
  • Square Footage2,030
  • Acres0.12
  • Year Built1993
  • TypeResidential
  • Sub-TypeMfg/Mobile Housing
  • StyleRanch
  • StatusActive

Community Information

  • Address3330 E Main Street (unit 446)
  • SubdivisionCypress Estates
  • CityMesa
  • CountyMaricopa
  • StateAZ
  • Zip Code85213

Amenities

  • UtilitiesSRP
  • Parking Spaces2
  • ParkingGated

Amenities

Pool, Golf, Gated, Community Spa, Community Spa Htd, Near Light Rail Stop, Near Bus Stop, Community Media Room, Biking/Walking Path

Interior

  • FireplaceYes
  • FireplacesWood Burning
  • # of Stories1

Interior Features

High Speed Internet, Breakfast Bar, No Interior Steps, Vaulted Ceiling(s), Kitchen Island, Full Bth Master Bdrm, Separate Shwr & Tub, Laminate Counters

Appliances

Dryer Included, Washer, Reverse Osmosis, Refrigerator, Dishwasher, Electric Range

Heating

ENERGY STAR Qualified Equipment, Electric

Cooling

Central Air, ENERGY STAR Qualified Equipment

Exterior

  • RoofComposition

Exterior Features

Covered Patio(s), Patio, Storage, Private Street(s)

Lot Description

North/South Exposure, Gravel/Stone Front, Gravel/Stone Back

Windows

Skylight(s), Solar Screens, Dual Pane

Construction

Wood Siding, Wood Frame, Painted

School Information

  • DistrictMesa Unified District
  • ElementaryHighland Arts Elementary
  • MiddlePoston Junior High School
  • HighMountain View High School

Listing Details

  • OfficeCentury 21 Arizona Foothills
Please provide a valid email address.

Century 21 Arizona Foothills.

Information Deemed Reliable But Not Guaranteed. All information should be verified by the recipient and none is guaranteed as accurate by ARMLS. ARMLS Logo indicates that a property listed by a real estate brokerage other than Launch Real Estate LLC. Copyright 2026 Arizona Regional Multiple Listing Service, Inc. All rights reserved.

Listing information last updated on February 7th, 2026 at 1:57am MST.