Connect

Find us on...

Dashboard

Login using...

Sandra Baldwin

Realtor - Co-Founder at Launch Real Estate

  • Office (602) 397-4300
Questions?

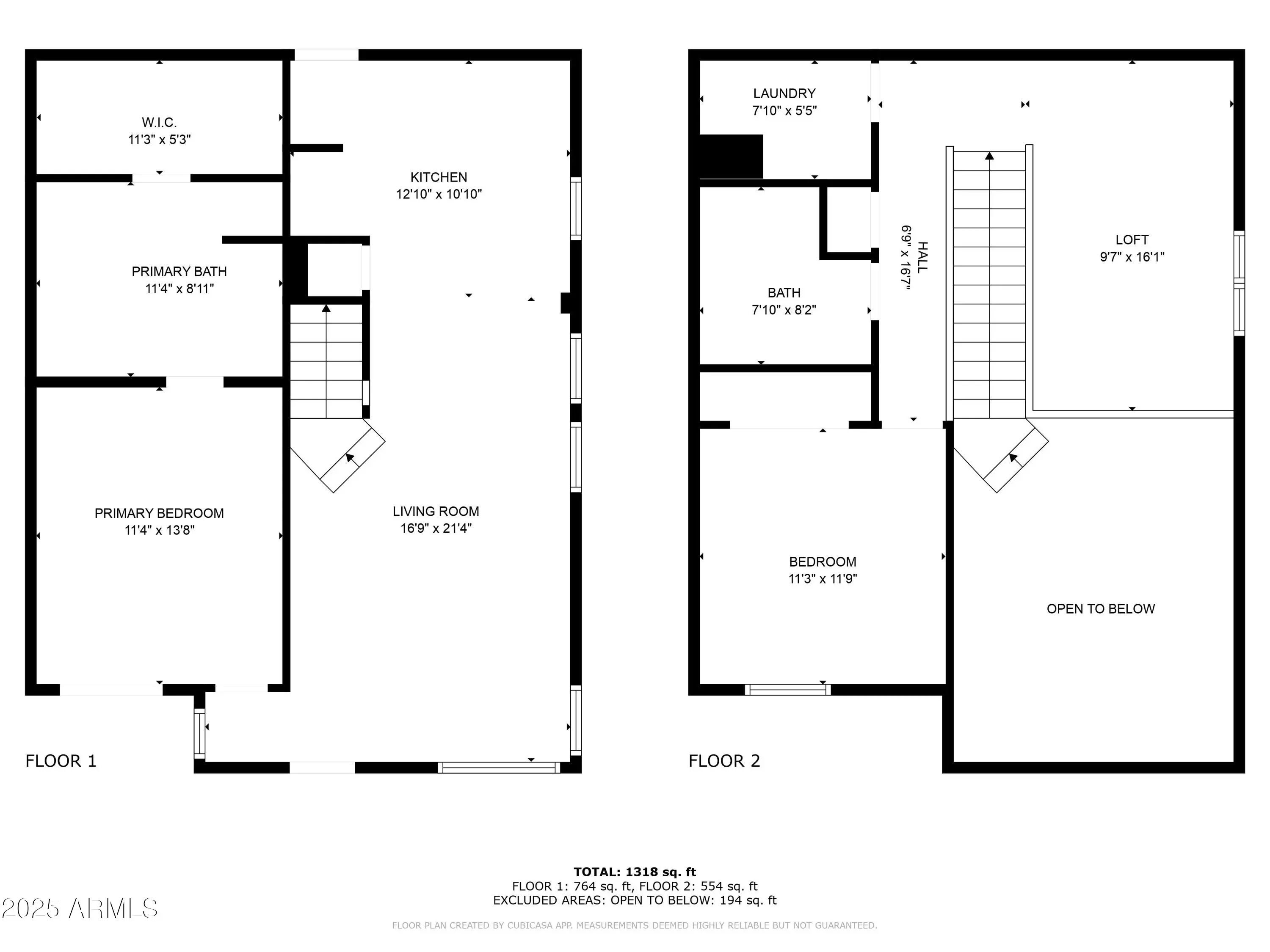
1225 N 36th Street (unit 1015), Phoenix, AZ – $349,000

  • 2 Beds
  • 2 Baths
  • 1,385 Sqft
  • .02 Acres
  • 2 Beds
  • 2 Baths
  • 1,385 Sqft
  • .02 Acres

1225 N 36th Street (unit 1015)

Gorgeous, fully renovated townhome located just minutes from Phoenix Sky Harbor and Downtown Phoenix! This move-in-ready gem features a newer A/C unit, modern updates with your own two car garage. Don't miss this opportunity!

Essential Information

  • MLS® #6966060
  • Price$349,000
  • Bedrooms2
  • Bathrooms2.00
  • Square Footage1,385
  • Acres0.02
  • Year Built2006
  • TypeResidential
  • Sub-TypeTownhouse
  • StatusActive

Community Information

  • Address1225 N 36th Street (unit 1015)
  • CityPhoenix
  • CountyMaricopa
  • StateAZ
  • Zip Code85008

Subdivision

ENCLAVE VILLAS CONDOMINIUM 2ND AMD

Amenities

  • UtilitiesSRP
  • Parking Spaces2
  • # of Garages2

Amenities

Pool, Gated, Community Spa Htd, Biking/Walking Path

Interior

  • HeatingElectric
  • CoolingHVAC SEER Rating
  • # of Stories2

Interior Features

2 Master Baths, Full Bth Master Bdrm, Separate Shwr & Tub

Appliances

Dryer Included, Washer, Dishwasher, Disposal

Exterior

  • Exterior FeaturesPatio, Storage
  • Lot DescriptionGravel/Stone Front
  • RoofTile
  • ConstructionStucco, Wood Frame

School Information

  • ElementaryThe Creighton Academy
  • MiddleThe Creighton Academy
  • HighCamelback High School

District

Phoenix Union High School District

Listing Details

  • OfficeHomeSmart
Please provide a valid email address.

Price Change History for 1225 N 36th Street (unit 1015), Phoenix, AZ (MLS® #6966060)

Date Details Change
Price Reduced from $359,000 to $349,000 $10,000 (2.79%)

HomeSmart.

Information Deemed Reliable But Not Guaranteed. All information should be verified by the recipient and none is guaranteed as accurate by ARMLS. ARMLS Logo indicates that a property listed by a real estate brokerage other than Launch Real Estate LLC. Copyright 2026 Arizona Regional Multiple Listing Service, Inc. All rights reserved.

Listing information last updated on February 9th, 2026 at 2:16pm MST.