Connect

Find us on...

Dashboard

Login using...

Sandra Baldwin

Realtor - Co-Founder at Launch Real Estate

  • Office (602) 397-4300
Questions?

15344 W Domingo Lane, Sun City West, AZ – $285,000

  • 2 Beds
  • 2 Baths
  • 1,068 Sqft
  • .11 Acres
  • 2 Beds
  • 2 Baths
  • 1,068 Sqft
  • .11 Acres

15344 W Domingo Lane

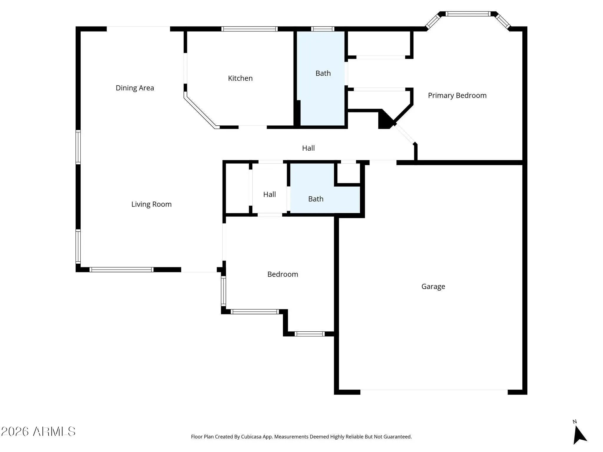
Beautifully maintained 2-bedroom, 2-bath home in the desirable 55+ community of Sun City West. This single-level Del Webb residence is clean, move-in ready, and offers a popular great room floor plan—perfect for comfortable living and entertaining. The kitchen and dining area flow seamlessly together and feature warm, neutral flooring that creates an inviting atmosphere. A split floor plan provides privacy, with a guest bedroom near the entry and the primary suite tucked away on the opposite side. The primary bedroom features a bay window for natural light and his-and-hers closets. Additional highlights include a 2-car garage with built-in storage cabinets and peace of mind with an HVAC system manufactured in May 2021. Ideal for those seeking a low-maintenance lifestyle in a welcoming active adult community.

Essential Information

  • MLS® #6967718
  • Price$285,000
  • Bedrooms2
  • Bathrooms2.00
  • Square Footage1,068
  • Acres0.11
  • Year Built1997
  • TypeResidential
  • Sub-TypeSingle Family Residence
  • StatusActive

Community Information

  • Address15344 W Domingo Lane
  • SubdivisionSUN CITY WEST UNIT 58A
  • CitySun City West
  • CountyMaricopa
  • StateAZ
  • Zip Code85375

Amenities

  • UtilitiesAPS, SW Gas
  • Parking Spaces4
  • # of Garages2

Amenities

Pool, Pickleball, Tennis Court(s), Biking/Walking Path

Parking

Garage Door Opener, Attch'd Gar Cabinets

Interior

  • AppliancesElectric Cooktop
  • HeatingElectric
  • CoolingCentral Air
  • # of Stories1

Interior Features

High Speed Internet, Double Vanity, Eat-in Kitchen, Full Bth Master Bdrm

Exterior

  • WindowsDual Pane
  • RoofTile
  • ConstructionStucco, Wood Frame, Painted

Lot Description

Gravel/Stone Front, Gravel/Stone Back

School Information

  • DistrictDysart Unified District
  • ElementaryEl Mirage Elementary School
  • MiddleEl Mirage Elementary School
  • HighDysart iSchool

Listing Details

Office

Keller Williams Realty Sonoran Living

Please provide a valid email address.

Keller Williams Realty Sonoran Living.

Information Deemed Reliable But Not Guaranteed. All information should be verified by the recipient and none is guaranteed as accurate by ARMLS. ARMLS Logo indicates that a property listed by a real estate brokerage other than Launch Real Estate LLC. Copyright 2026 Arizona Regional Multiple Listing Service, Inc. All rights reserved.

Listing information last updated on January 16th, 2026 at 5:28am MST.