Connect

Find us on...

Dashboard

Login using...

Sandra Baldwin

Realtor - Co-Founder at Launch Real Estate

  • Office (602) 397-4300
Questions?

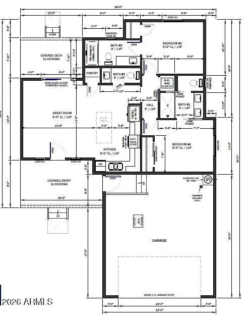
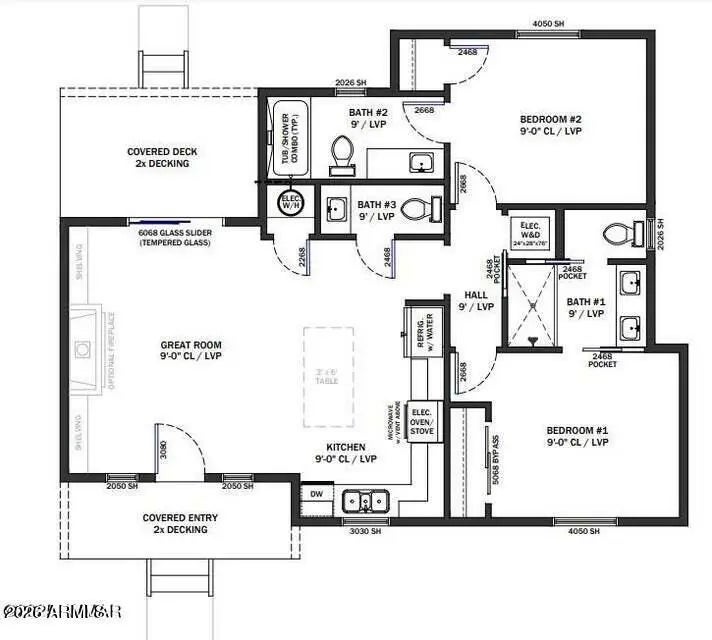
780 S Rockcreek Drive, Show Low, AZ – $299,500

  • 2 Beds
  • 3 Baths
  • 901 Sqft
  • .23 Acres
  • 2 Beds
  • 3 Baths
  • 901 Sqft
  • .23 Acres

780 S Rockcreek Drive

UNDER $300,000 for a brand new home is an unbelievable opportunity. The future of Show Low is in Show Low Bluff. This home is to be built using the buyers financing. The home features two primary suites with ensuites and a half bath for your guests. The thoughtful floor plan not only provides plenty of natural light and a feeling of spaciousness, but it also provide amazing outdoor living potential with front and back decks. Buyer to purchase the lot for $48,000 and contract with the builder for $251,500. Plan available with or without attached garage.

Essential Information

  • MLS® #6968955
  • Price$299,500
  • Bedrooms2
  • Bathrooms3.00
  • Square Footage901
  • Acres0.23
  • Year Built2026
  • TypeResidential
  • Sub-TypeSingle Family Residence
  • StatusActive Under Contract

Community Information

  • Address780 S Rockcreek Drive
  • SubdivisionSHOW LOW BLUFF PHASE 1A
  • CityShow Low
  • CountyNavajo
  • StateAZ
  • Zip Code85901

Amenities

  • Parking Spaces4
  • ParkingGarage Door Opener
  • # of Garages2
  • ViewMountain(s)

Utilities

APS, Natural Gas Available, Unisource

Interior

  • Interior FeaturesFull Bth Master Bdrm
  • HeatingForced Air, Natural Gas
  • CoolingCentral Air
  • FireplaceYes
  • FireplacesLiving Room, Gas
  • # of Stories1

Appliances

Dryer, Washer, Refrigerator, Dishwasher, Disposal, Gas Range, Gas Oven

Exterior

  • Exterior FeaturesCovered Deck
  • Lot DescriptionDesert Back, Desert Front
  • WindowsDual Pane
  • RoofComposition
  • ConstructionLap Siding, Wood Frame
  • FoundationBlock

School Information

  • DistrictShow Low Unified District
  • MiddleShow Low Junior High School
  • HighShow Low High School

Elementary

Whipple Ranch Elementary School

Listing Details

  • OfficeWest USA Realty
Please provide a valid email address.

Price Change History for 780 S Rockcreek Drive, Show Low, AZ (MLS® #6968955)

Date Details Change
Status Changed from Active to Active Under Contract
Price Increased from $294,500 to $299,500 $5,000 (1.70%)

West USA Realty.

Information Deemed Reliable But Not Guaranteed. All information should be verified by the recipient and none is guaranteed as accurate by ARMLS. ARMLS Logo indicates that a property listed by a real estate brokerage other than Launch Real Estate LLC. Copyright 2026 Arizona Regional Multiple Listing Service, Inc. All rights reserved.

Listing information last updated on March 13th, 2026 at 7:46am MST.