Connect

Find us on...

Dashboard

Login using...

Sandra Baldwin

Realtor - Co-Founder at Launch Real Estate

  • Office (602) 397-4300
Questions?

50602 N Us Hwy 60 Avenue, Wickenburg, AZ – $3,700,000

  • 4 Beds
  • 4 Baths
  • 8,682 Sqft
  • 29.9 Acres
  • 4 Beds
  • 4 Baths
  • 8,682 Sqft
  • 29.9 Acres

50602 N Us Hwy 60 Avenue

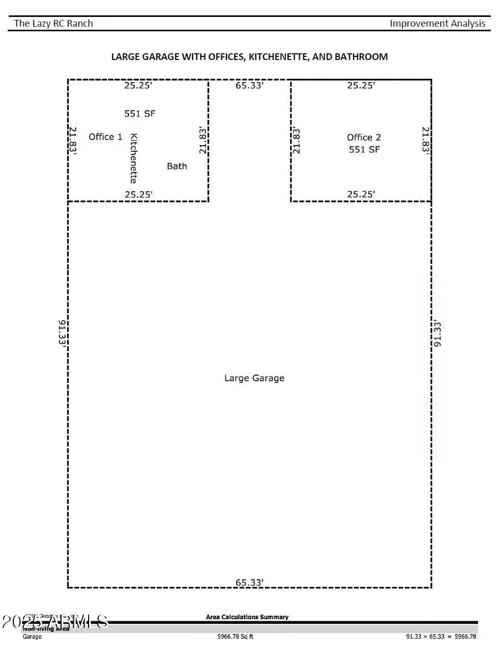
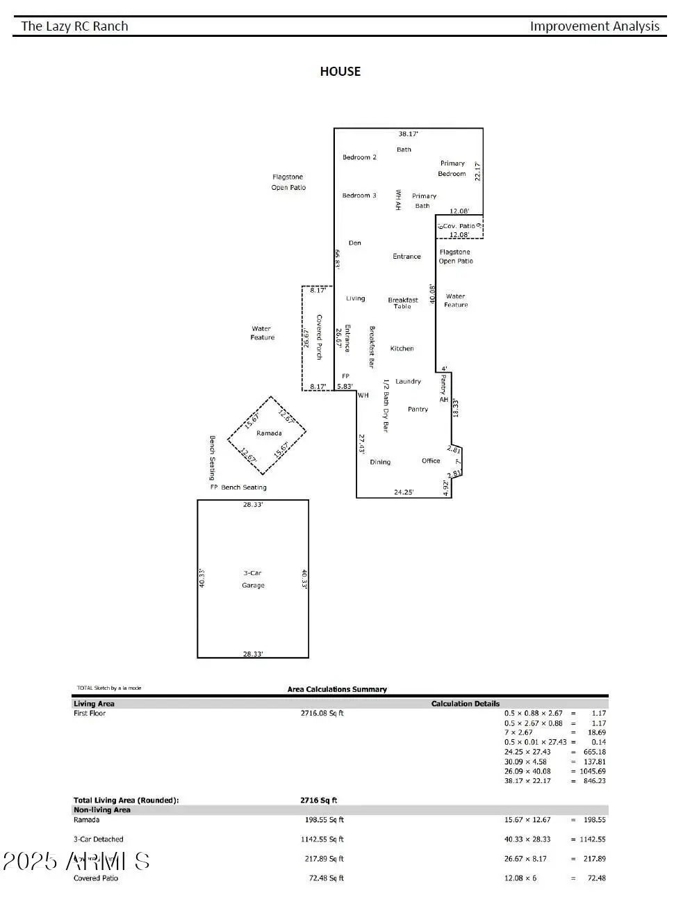
Discover the legacy of the Lazy RC Ranch, approximately 30 contiguous acres bordering the Hassayampa River with two private entrances directly accessible from Highway 60. This estate features a meticulously upgraded residence offering three bedrooms and two and a half bathrooms, library & den complemented by a detached three-car garage. Interior highlights include cherry wood cabinetry, Indian Piranha Granite countertops, an Ashfork stone fireplace, and a combination of wood, tile, and crisp white carpet flooring. Elaborate outdoor entertaining gallery overlooks the Hassayampa River, complete with intimate walking paths down to the riverbed. Extensive landscaping and water features surround the home and appear throughout the grounds. The property also boasts a 5,966 square foot climate- -controlled workshop and event center, offering his and hers offices as well as a kitchen and full bath; adjacent to a quarter-acre pond stocked with Bass, Blue Gill and Catfish finished with waterfalls and hand-laid flagstone paths. The centerpiece of the tranquil property may be the Pecan Orchard and the many varieties of fruit trees including apples, peaches, lemons, limes, pomegranates, and tangelos, harboring an abundance of wildlife. A historic element, the Rock House or "Miners Ramada," originally constructed in 1920, serves as an inviting venue for outdoor events, quiet evening dinners and relaxation. Spanning nearly one mile, the property offers numerous trails and walking paths devotedly created with hand placed flagstone, river rock, and timbers. Guests may enjoy the river walk overlooking the riparian nature conservancy, meditation points, and hilltop lookout areas amidst diverse elevations and mature arboreal landscapes. Currently 6 RV Hookups strategically placed: two on the hilltop above the pond with extraordinary views and four nestled above the river walk overlooking the treetops of the Hassayampa River. Additionally, on the opposite side of Hwy 60 one parcel being offered includes an income producing billboard. Originally part of the historic Brill Ranch, established in 1866, when 700 head of cattle were driven from California to the pristine banks of the Hassayampa in Wickenburg, Arizona. The current ranch borders the Nature Conservancy and features direct highway access. The unparalleled privacy, prime location, and investment opportunity offered here is unprecedented in Wickenburg. Transitioning from its origins as a cattle ranch to a guest ranch, and now a private retreat, the Lazy RC Ranch invites qualified parties to experience its rich history and explore the endless possibilities.

Essential Information

  • MLS® #6974864
  • Price$3,700,000
  • Bedrooms4
  • Bathrooms4.00
  • Square Footage8,682
  • Acres29.90
  • Year Built1954
  • TypeResidential
  • Sub-TypeSingle Family Residence
  • StyleRanch, Spanish
  • StatusActive

Community Information

  • Address50602 N Us Hwy 60 Avenue
  • CityWickenburg
  • CountyMaricopa
  • StateAZ
  • Zip Code85390

Subdivision

Lazy RC Ranch, Historic Brill Ranch on the Hassayampa River, Bordering the Nature Conservancy

Amenities

  • UtilitiesAPS, Natural Gas Available
  • Parking Spaces25
  • # of Garages20
  • Is WaterfrontYes

Parking

Off Street, Detached Garage, RV Access/Parking, Gated, RV Gate, Garage Door Opener, Circular Driveway, Over Height Garage, Separate Strge Area, Temp Controlled, Detached, Golf Cart Garage, RV Garage

View

Creek/Stream, Desert, Panoramic, River, Trees/Woods, Mountain(s)

Interior

  • HeatingHeat Pump, Natural Gas
  • CoolingCentral Air
  • FireplaceYes
  • FireplacesWood Burning
  • # of Stories1

Interior Features

High Speed Internet, Granite Counters, Full Bth Master Bdrm

Appliances

Dryer, Washer, Refrigerator, Dishwasher, Gas Range, Gas Cooktop

Exterior

  • WindowsScreens, Dual Pane
  • RoofOther, Metal
  • ConstructionOther, Wood Frame, Block

Exterior Features

Balcony, Built-in BBQ, Covered Patio(s), Patio, RV Hookup, GazeboRamada, Storage, Rain Gutters

Lot Description

Rural, Adjacent to Wash, Hillside Lot, Borders Preserve/Public Land, Waterfront Lot, Desert Back, Desert Front, Natural Desert Back, Gravel/Stone Front, Gravel/Stone Back, Auto Timer H2O Front, Auto Timer H2O Back, Irrigation Front, Irrigation Back

School Information

  • DistrictWickenburg Unified District
  • ElementaryHassayampa Elementary School
  • MiddleWickenburg High School
  • HighWickenburg High School

Listing Details

  • OfficeArizona Legends Realty
Please provide a valid email address.

Arizona Legends Realty.

Information Deemed Reliable But Not Guaranteed. All information should be verified by the recipient and none is guaranteed as accurate by ARMLS. ARMLS Logo indicates that a property listed by a real estate brokerage other than Launch Real Estate LLC. Copyright 2026 Arizona Regional Multiple Listing Service, Inc. All rights reserved.

Listing information last updated on February 23rd, 2026 at 11:01am MST.