Connect

Find us on...

Dashboard

Login using...

Sandra Baldwin

Realtor - Co-Founder at Launch Real Estate

  • Office (602) 397-4300
Questions?

Xx1 N 211th Avenue (unit -), Wittmann, AZ – $549,000

  • $549k Price
  • 4.38 Acres
  • $549k Price
  • 4.38 Acres

Xx1 N 211th Avenue (unit -)

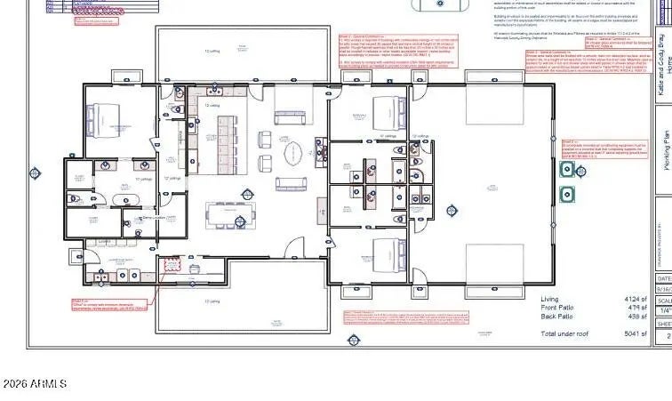
Income-producing opportunity in the heart of Wittmann's sought-after roping community! This fully fenced 4.383-acre parcel offers a rare combination of infrastructure, approved development work, and western lifestyle potential. Included in the purchase price are approved building plans designed with flexibility in mind—ideal for a large family home or a rental investment. The floor plan is designed to allow the property to be rented out up to four separate ways, offering privacy and strong income potential.Extensive groundwork has already been completed, including approved plans, perk test, planning & drainage completion, making this property truly build-ready. Equestrian improvements are already in motion as well, with 20 stalls approved and permitted, along with an approved arena, creating the perfect setup for serious horse enthusiasts. The land is flat, usable, and serviced by a private well with two 5,200-gallon holding tanks and dual pressure system pumps, providing an excellent foundation for future development. Located just off a paved road, this parcel offers easy year-round access while maintaining a peaceful rural setting. Enjoy being only 10 minutes from Fry's and Starbucks, approximately 20 minutes from Lake Pleasant, and just 20 minutes to Wickenburg, all while surrounded by a strong western lifestyle community. This is a rare opportunity to own a well-improved property with both investment potential and equestrian-ready possibilities in one of Arizona's most desirable horse property locations.

Essential Information

  • MLS® #6978356
  • Price$549,000
  • Acres4.38
  • TypeLand
  • StatusActive

Community Information

  • AddressXx1 N 211th Avenue (unit -)
  • SubdivisionPrivate well, 4.383 acres
  • CityWittmann
  • CountyMaricopa
  • StateAZ
  • Zip Code85361

Amenities

  • ViewDesert

Exterior

  • Lot DescriptionCorner Lot

School Information

  • DistrictWickenburg Unified District
  • ElementaryNadaburg Elementary School
  • MiddleNadaburg Elementary School
  • HighWickenburg High School

Additional Information

  • ZoningR-43

Listing Details

  • OfficeHomeSmart
Please provide a valid email address.

HomeSmart.

Information Deemed Reliable But Not Guaranteed. All information should be verified by the recipient and none is guaranteed as accurate by ARMLS. ARMLS Logo indicates that a property listed by a real estate brokerage other than Launch Real Estate LLC. Copyright 2026 Arizona Regional Multiple Listing Service, Inc. All rights reserved.

Listing information last updated on February 8th, 2026 at 3:28am MST.