Connect

Find us on...

Dashboard

Login using...

Sandra Baldwin

Realtor - Co-Founder at Launch Real Estate

  • Office (602) 397-4300
Questions?

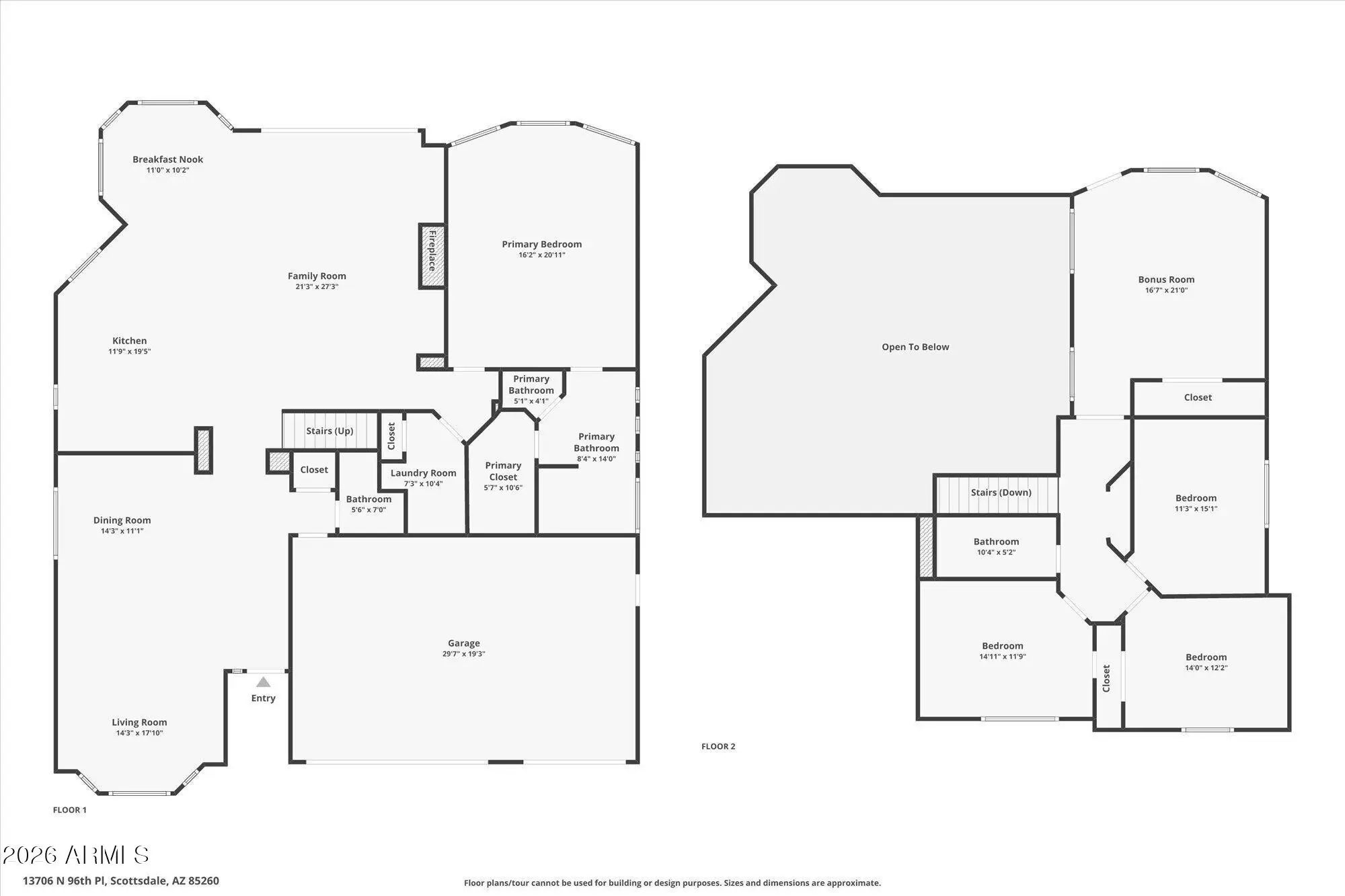
13706 N 96th Place, Scottsdale, AZ – $1,250,000

  • 5 Beds
  • 3 Baths
  • 3,243 Sqft
  • .17 Acres
  • 5 Beds
  • 3 Baths
  • 3,243 Sqft
  • .17 Acres

13706 N 96th Place

Experience the ultimate Scottsdale lifestyle in the highly sought-after community of Camelot Ranch, nestled within the coveted Cactus Corridor and take pride in knowing you got a GREAT DEAL as this is the LOWEST PRICED 5 bedroom home available IN THE ENTIRE ZIP CODE. This neighborhood is known for its incredible spirit offering a charming atmosphere complete with festive holiday light displays, spirited Halloween parades, and active community events. Residents enjoy access to private parks and scenic walking and biking paths, with the stunning McDowell Mountains just moments away for world-class hiking and outdoor adventure. The home itself welcomes you with a light-filled, open-air design featuring soaring vaulted ceilings and expansive windows that bathe every room in natural light. The The intelligent floor plan perfectly balances elegance and comfort, offering a formal front living room alongside a spacious family room that flows seamlessly into the kitchen and dining areas. For ultimate privacy, the primary suite is conveniently located on the main level, while four additional generous bedrooms are situated upstairs. Step outside to your private backyard oasis (no neighbors behind), featuring a heated pool and spa designed for year-round relaxation and entertaining. This prime location places you just minutes from the Loop 101 for effortless commuting, while top-tier education is right at your doorstep with award-winning schools like Cheyenne Traditional, Basis, Desert Mountain High School and Notre Dame Prep. For leisure, you are perfectly positioned near premier golf courses and the exquisite shopping and dining destinations of Kierland Commons and Scottsdale Quarter. Representing an incredible value, this residence stands as a rare opportunity to own a spacious five-bedroom home in one of Scottsdale's most desirable zip codes.

Essential Information

  • MLS® #6981899
  • Price$1,250,000
  • Bedrooms5
  • Bathrooms3.00
  • Square Footage3,243
  • Acres0.17
  • Year Built1995
  • TypeResidential
  • Sub-TypeSingle Family Residence
  • StatusActive

Community Information

  • Address13706 N 96th Place
  • SubdivisionCAMELOT RANCH
  • CityScottsdale
  • CountyMaricopa
  • StateAZ
  • Zip Code85260

Amenities

  • AmenitiesBiking/Walking Path
  • UtilitiesAPS, SW Gas
  • Parking Spaces6
  • # of Garages3
  • Has PoolYes
  • PoolPlay Pool, Heated

Parking

Garage Door Opener, Direct Access, Attch'd Gar Cabinets

Interior

  • HeatingNatural Gas
  • CoolingCentral Air
  • FireplaceYes
  • FireplacesFamily Room, Gas
  • # of Stories2

Interior Features

High Speed Internet, Granite Counters, Double Vanity, Master Downstairs, Eat-in Kitchen, Breakfast Bar, Vaulted Ceiling(s), Kitchen Island, Pantry, Full Bth Master Bdrm, Separate Shwr & Tub, Tub with Jets

Appliances

Dryer, Washer, Water Softener Owned, Reverse Osmosis, Refrigerator, Built-in Microwave, Dishwasher, Disposal, Gas Cooktop

Exterior

  • WindowsSkylight(s), Dual Pane
  • RoofTile
  • ConstructionStucco, Wood Frame, Painted

Exterior Features

Balcony, Covered Patio(s), Patio

Lot Description

East/West Exposure, Sprinklers In Rear, Sprinklers In Front, Grass Front, Grass Back

School Information

  • DistrictScottsdale Unified District
  • HighDesert Mountain High School

Elementary

Cheyenne Traditional Elementary School

Middle

Cheyenne Traditional Elementary School

Listing Details

  • OfficeRE/MAX Fine Properties
Please provide a valid email address.

Price Change History for 13706 N 96th Place, Scottsdale, AZ (MLS® #6981899)

Date Details Change
Price Reduced from $1,275,000 to $1,250,000 $25,000 (1.96%)
Price Reduced from $1,295,000 to $1,275,000 $20,000 (1.54%)

RE/MAX Fine Properties.

Information Deemed Reliable But Not Guaranteed. All information should be verified by the recipient and none is guaranteed as accurate by ARMLS. ARMLS Logo indicates that a property listed by a real estate brokerage other than Launch Real Estate LLC. Copyright 2026 Arizona Regional Multiple Listing Service, Inc. All rights reserved.

Listing information last updated on April 10th, 2026 at 11:06am MST.