Connect

Find us on...

Dashboard

Login using...

Sandra Baldwin

Realtor - Co-Founder at Launch Real Estate

  • Office (602) 397-4300
Questions?

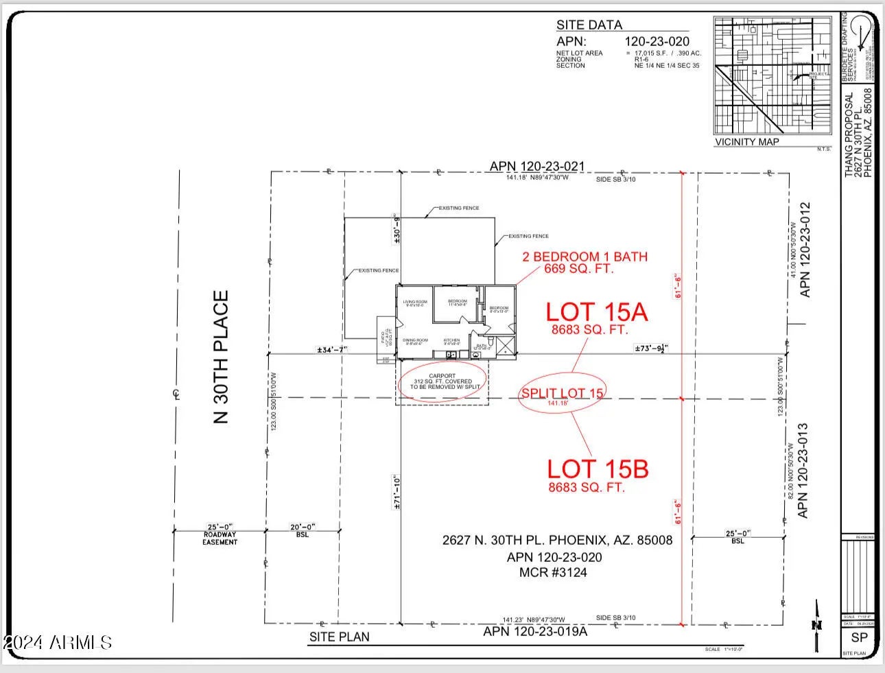
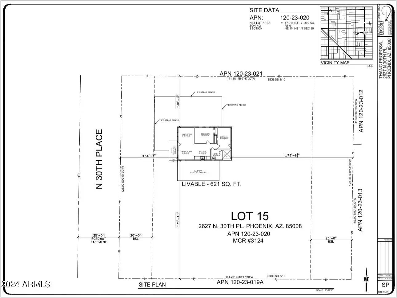
2627 N 30th Place, Phoenix, AZ – $529,000

  • 2 Beds
  • 1 Bath
  • 800 Sqft
  • .39 Acres
  • 2 Beds
  • 1 Bath
  • 800 Sqft
  • .39 Acres

2627 N 30th Place

GREAT investment opportunity!! RARE!! ATTENTION INVESTORS AND BUILDERS. Small rental home on this amazing RARE LARGE parcel size of 17,000sf!! Zoning is R1-6, so each lot (without a variance) needs a minimum of 6,000sf per lot, but many lots in the area are less than 6,000sf. No variance needed if you split the site into two lots and you could build one home on the South lot and keep the small home on the North lot as rental income ($1,500/mo) until you are ready to tear it down and build a new home. Phoenix zoning now allows ADUs (Additional Dwelling Units). Many new homes are being built in the immediate area and this is a RARE parcel size!! See photos with potential development ideas. Check with city to verify all info. Do NOT walk the lot!! Thank you! Location is perfect, easy access to the 202 & 51 and minutes from Downtown Phoenix! No HOA. Hot Area with many new homes being built!

Essential Information

  • MLS® #6993326
  • Price$529,000
  • Bedrooms2
  • Bathrooms1.00
  • Square Footage800
  • Acres0.39
  • Year Built1950
  • TypeResidential
  • Sub-TypeSingle Family Residence
  • StatusActive

Community Information

  • Address2627 N 30th Place
  • SubdivisionMATTHEWS TRACT
  • CityPhoenix
  • CountyMaricopa
  • StateAZ
  • Zip Code85008

Amenities

  • UtilitiesAPS, SW Gas
  • Parking Spaces6
  • ViewMountain(s)

Interior

  • Interior FeaturesEat-in Kitchen
  • AppliancesRefrigerator, Electric Oven
  • HeatingMini Split
  • CoolingMini Split
  • # of Stories1

Exterior

  • Exterior FeaturesBalcony
  • Lot DescriptionNone
  • RoofComposition

Construction

Wood Siding, Wood Frame, Painted

School Information

  • ElementaryMonte Vista Elementary School
  • MiddleMonte Vista Elementary School
  • HighCamelback High School

District

Phoenix Union High School District

Listing Details

Office

Windermere Real Estate & Property Management

Please provide a valid email address.

Windermere Real Estate & Property Management.

Information Deemed Reliable But Not Guaranteed. All information should be verified by the recipient and none is guaranteed as accurate by ARMLS. ARMLS Logo indicates that a property listed by a real estate brokerage other than Launch Real Estate LLC. Copyright 2026 Arizona Regional Multiple Listing Service, Inc. All rights reserved.

Listing information last updated on March 14th, 2026 at 5:45pm MST.