Connect

Find us on...

Dashboard

Login using...

Sandra Baldwin

Realtor - Co-Founder at Launch Real Estate

  • Office (602) 397-4300
Questions?

54300 W Yellow Canyon Trail, Maricopa, AZ – $319,000

  • 5 Beds
  • 3 Baths
  • 2,128 Sqft
  • 1.44 Acres
  • 5 Beds
  • 3 Baths
  • 2,128 Sqft
  • 1.44 Acres

54300 W Yellow Canyon Trail

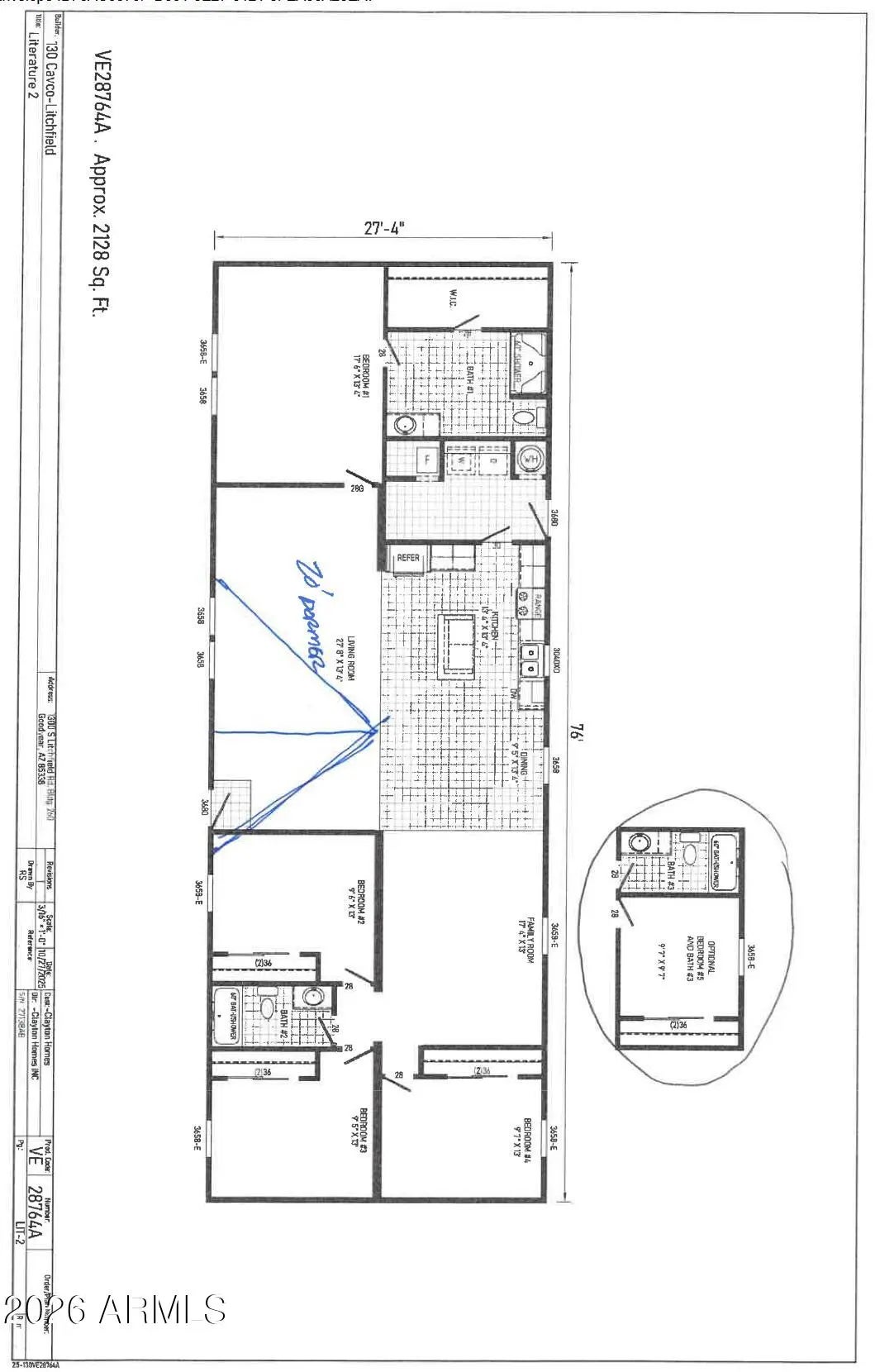
Be the very first owner of this brand-new 2026 Cavco home! On this spacious 1.44 acre lot, will be a 5 bed, rarely seen 3rd bath, 2,128 sqft manufactured home. The shared well is to be shared with only 4 homes. This beautiful and large home is made with Low E windows, 9ft ceilings, and easy to clean vinyl floors throughout. This home will be installed with a groundset permanent foundation that looks great from all angles and will provide you with a strong and secure structure. Spread out in the large kitchen, dining room, and open floor plan with that 5th bedroom that is great for family, guests, or even a home office! Please note, that this home is currently being installed but the floorplan picture is accurate.

Essential Information

  • MLS® #6996258
  • Price$319,000
  • Bedrooms5
  • Bathrooms3.00
  • Square Footage2,128
  • Acres1.44
  • Year Built2026
  • TypeResidential
  • Sub-TypeMfg/Mobile Housing
  • StatusActive

Community Information

  • Address54300 W Yellow Canyon Trail
  • CityMaricopa
  • CountyPinal
  • StateAZ
  • Zip Code85139

Subdivision

A PORTION OF THE SOUTHWEST QUARTER OF THE NORTHWES

Amenities

  • UtilitiesOth Elec (See Rmrks)
  • Parking Spaces2

Interior

  • HeatingElectric
  • CoolingCentral Air
  • # of Stories1

Interior Features

9+ Flat Ceilings, Full Bth Master Bdrm

Appliances

Refrigerator, Dishwasher, Electric Range

Exterior

  • RoofComposition

Lot Description

Rural, Natural Desert Back, Natural Desert Front

Windows

Low-Emissivity Windows, Dual Pane

Construction

Vertical Siding, Panelized Constrctn

School Information

  • ElementaryMaricopa Elementary School
  • MiddleMaricopa Wells Middle School
  • HighMaricopa High School

District

Maricopa Unified School District

Listing Details

  • OfficeHomeSmart
Please provide a valid email address.

HomeSmart.

Information Deemed Reliable But Not Guaranteed. All information should be verified by the recipient and none is guaranteed as accurate by ARMLS. ARMLS Logo indicates that a property listed by a real estate brokerage other than Launch Real Estate LLC. Copyright 2026 Arizona Regional Multiple Listing Service, Inc. All rights reserved.

Listing information last updated on April 3rd, 2026 at 7:29pm MST.