Connect

Find us on...

Dashboard

Login using...

Sandra Baldwin

Realtor - Co-Founder at Launch Real Estate

  • Office (602) 397-4300
Questions?

7821 E Usery Pass Trail (unit 18), Gold Canyon, AZ – $400,000

  • $400k Price
  • .54 Acres
  • $400k Price
  • .54 Acres

7821 E Usery Pass Trail (unit 18)

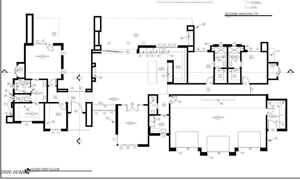
WOW! Both golf and mountain views on the 3rd fairway of the Prospector Course in the Premier Lyle Anderson private community with 24/7 guarded gate and 36 holes of Nicklaus designed golf. Golf club membership under separate agreement with club ownership. Exacting community design standards and prudent CCR's set the stage for the potential of lasting value. Over half an acre, this fully improved level lot is in a neighborhood of multi-million dollar estate homes. FULL SET OF PLANS INCLUDED IN SALE, 3005SF, MODERN, 3 CAR GARAGE. Under final review with County and quick final HOA approval and this will be shovel ready! Home design by Grady Olsen Designs. Landscape: Shearon Design Co. Your views are endless as you enjoy the warm winter sun on your future backyard pool and incredible sunsets

Essential Information

  • MLS® #7005407
  • Price$400,000
  • Acres0.54
  • TypeLand
  • StatusActive

Community Information

  • CityGold Canyon
  • CountyPinal
  • StateAZ
  • Zip Code85118

Address

7821 E Usery Pass Trail (unit 18)

Subdivision

SYCAMORE VILLAGE AT SUPERSTITION FOOTHILLS

School Information

  • ElementaryFour Peaks Elementary School
  • MiddleCactus Canyon Junior High
  • HighApache Junction High School

District

Apache Junction Unified District

Additional Information

  • ZoningSingle Family

Listing Details

  • OfficeMy Home Group Real Estate
Please provide a valid email address.

My Home Group Real Estate.

Information Deemed Reliable But Not Guaranteed. All information should be verified by the recipient and none is guaranteed as accurate by ARMLS. ARMLS Logo indicates that a property listed by a real estate brokerage other than Launch Real Estate LLC. Copyright 2026 Arizona Regional Multiple Listing Service, Inc. All rights reserved.

Listing information last updated on April 1st, 2026 at 11:46am MST.